ガーラ・ステーション菊川【満室】 *** | 1LDK | ***
本情報は過去に掲載された物件の参考情報です。 最新の物件情報など詳細につきましてはお気軽にお問合せください。
| 賃料 | *** | 管理費・共益費 | *** |
|---|---|---|---|
| 敷金/礼金 | *** / *** | 専有面積 | 39.91m² |
| 間取り | 1LDK | 階建 | ***/12階建 |
ガーラ・ステーション菊川【満室】の詳細
| 賃料 | *** | 管理費・共益費 | *** |
|---|---|---|---|
| 敷金/保証金 | *** / *** | 礼金/償却・敷引 | *** / *** |
| 更新料 | *** | フリーレント | *** |
| その他費用 | *** | ||
| 所在地 | 東京都墨田区菊川2丁目 | ||
| 交通 |
都営新宿線「菊川(東京)」 徒歩2分 都営大江戸線「森下(東京)」 徒歩11分 東京地下鉄半蔵門線「住吉(東京)」 徒歩13分 |
||
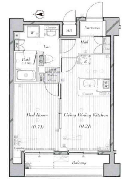
| 間取り | 1LDK | 間取り内訳 |
洋室 6.7 畳 LDK 9.2 畳 |
| 専有面積 | 39.91m² | バルコニー面積 | |
| 築年月(築年数) | 2008年03月(築17年) | 方位 | 西 |
| 建物構造 | RC(鉄筋コンクリート) | 所在階/階建 | ***/12階建 |
| 総戸数 | 98戸 | 駐車場 | |
| 保険料 | *** | 契約期間 | *** |
| 引渡 | 2022年08月 | ||
| 現況(予定年月) | 居住中 | ||
| 管理 | |||
| 設備・条件 | BSアンテナ、CSアンテナ、CATV、オートロック、TVドアホン、防犯カメラ、ディンプルキー、ダブルロックキー、宅配ボックス、駐輪場、エレベータ、システムキッチン、バス・トイレ別、温水洗浄便座、浴室乾燥機、室内洗濯機置き場、フローリング、24時間換気システム、エアコン、ウォークインクローゼット、バルコニー、分譲賃貸 | ||
| 備考 | 保証人代行:必須/家賃総額40%~ | ||
| 周辺施設 |
オオゼキ 菊川店(距離:413m) ファミリーマート 立川四丁目店(距離:210m) ザ・ダイソー くすりの福太郎菊川店(距離:112m) くすりの福太郎 菊川店(距離:114m) マルエツ 菊川店(距離:337m) |
||
| 物件番号 | 27306 | 取引態様 | 仲介 |
| 情報更新日 | *** | ||
| 次回更新予定日 | 情報更新日より15日以内 | ||


















COMMENTS FROM STAFFガーラ・ステーション菊川【満室】の
担当者コメント
東京の1人暮らしはアセットナビへ!自社ブランドマンションをはじめ、賃貸物件を数多くご紹介可能です。こちらの物件は、分譲賃貸マンションで設備が充実しております。オートロックシステムでセキュリティもバッチリです。