ルーブル練馬参番館【満室】 *** | 1K | ***
本情報は過去に掲載された物件の参考情報です。 最新の物件情報など詳細につきましてはお気軽にお問合せください。
| 賃料 | *** | 管理費・共益費 | *** |
|---|---|---|---|
| 敷金/礼金 | *** / *** | 専有面積 | 20.44m² |
| 間取り | 1K | 階建 | ***/5階建 |
ルーブル練馬参番館【満室】の詳細
| 賃料 | *** | 管理費・共益費 | *** |
|---|---|---|---|
| 敷金/保証金 | *** / *** | 礼金/償却・敷引 | *** / *** |
| 更新料 | *** | フリーレント | *** |
| その他費用 | *** | ||
| 所在地 | 東京都練馬区中村1丁目 | ||
| 交通 |
都営大江戸線「練馬」 徒歩8分 西武池袋・豊島線「中村橋」 徒歩16分 西武池袋・豊島線「豊島園」 徒歩14分 |
||
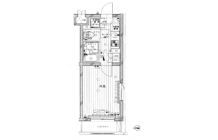
| 間取り | 1K | 間取り内訳 |
K 2 畳 洋室 6 畳 |
| 専有面積 | 20.44m² | バルコニー面積 | |
| 築年月(築年数) | 2010年10月(築15年) | 方位 | 西 |
| 建物構造 | RC(鉄筋コンクリート) | 所在階/階建 | ***/5階建 |
| 総戸数 | 52戸 | 駐車場 | |
| 保険料 | *** | 契約期間 | *** |
| 引渡 | 即時 | ||
| 現況(予定年月) | 空室 | ||
| 管理 | |||
| 設備・条件 | オートロック、防犯カメラ、ディンプルキー、ダブルロックキー、宅配ボックス、駐輪場、エレベータ、デザイナーズ、2階以上、角部屋、システムキッチン、バス・トイレ別、温水洗浄便座、浴室乾燥機、室内洗濯機置き場、洗濯機置き場有、フローリング、24時間換気システム、エアコン、バルコニー、分譲賃貸、ペット不可 | ||
| 備考 | 保証人代行:必須/賃料総額の40%~ | ||
| 周辺施設 |
業務スーパー 練馬駅前店(距離:540m) ライフ 練馬中村北店(距離:560m) セブンイレブン 練馬駅西店(距離:627m) ファミリーマート 豊玉北六丁目店(距離:191m) ドラッグセガミ 練馬店(距離:337m) |
||
| 物件番号 | 50175 | 取引態様 | 仲介 |
| 情報更新日 | *** | ||
| 次回更新予定日 | 情報更新日より15日以内 | ||



















COMMENTS FROM STAFFルーブル練馬参番館【満室】の
担当者コメント
東京の1人暮らしはアセットナビへ!自社ブランドマンションをはじめ、賃貸物件を数多くご紹介可能です。こちらの物件は、分譲賃貸マンションで設備が充実しております。オートロックシステムでセキュリティもバッチリです。