ルーブル中野新橋参番館【満室】 *** | 1K | ***
本情報は過去に掲載された物件の参考情報です。 最新の物件情報など詳細につきましてはお気軽にお問合せください。
| 賃料 | *** | 管理費・共益費 | *** |
|---|---|---|---|
| 敷金/礼金 | *** / *** | 専有面積 | 20.25m² |
| 間取り | 1K | 階建 | ***/5階建 |
ルーブル中野新橋参番館【満室】の詳細
| 賃料 | *** | 管理費・共益費 | *** |
|---|---|---|---|
| 敷金/保証金 | *** / *** | 礼金/償却・敷引 | *** / *** |
| 更新料 | *** | フリーレント | *** |
| その他費用 | *** | ||
| 所在地 | 東京都中野区弥生町2丁目 | ||
| 交通 |
東京地下鉄方南支線「中野新橋」 徒歩4分 東京地下鉄方南支線「中野富士見町」 徒歩7分 東京地下鉄丸ノ内線「新中野」 徒歩13分 |
||
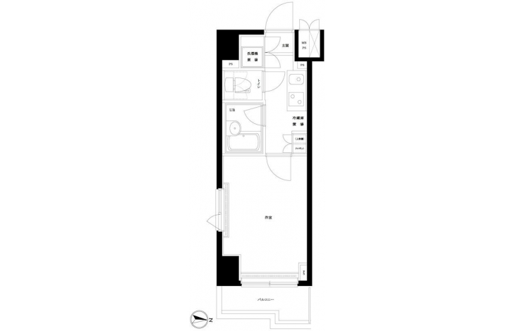
| 間取り | 1K | 間取り内訳 |
K 2 畳 洋室 6 畳 |
| 専有面積 | 20.25m² | バルコニー面積 | |
| 築年月(築年数) | 2009年02月(築16年) | 方位 | 東 |
| 建物構造 | RC(鉄筋コンクリート) | 所在階/階建 | ***/5階建 |
| 総戸数 | 29戸 | 駐車場 | 無 |
| 保険料 | *** | 契約期間 | *** |
| 引渡 | 2025年10月 | ||
| 現況(予定年月) | 空室 | ||
| 管理 | 管理人/巡回、 | ||
| 設備・条件 | BSアンテナ、オートロック、TVドアホン、防犯カメラ、ダブルロックキー、宅配ボックス、エレベータ、デザイナーズ、2階以上、角部屋、システムキッチン、バス・トイレ別、温水洗浄便座、浴室乾燥機、室内洗濯機置き場、フローリング、24時間換気システム、エアコン、バルコニー、分譲賃貸、日当たり良好、敷金なし、ペット不可 | ||
| 備考 | 保証人代行:必須/初回:家賃総額30%~ | ||
| 周辺施設 |
業務スーパー 中野弥生町店(距離:226m) ローソンストア100 LS中野新橋店(距離:213m) ファミリーマート中野弥生町二丁目店(距離:269m) 丸正食品 Pico 中野新橋店(距離:329m) maruetsu(マルエツ) 中野新橋店(距離:408m) ウエルシア中野新橋店(距離:446m) |
||
| 物件番号 | 35473 | 取引態様 | 仲介 |
| 情報更新日 | *** | ||
| 次回更新予定日 | 情報更新日より15日以内 | ||



















COMMENTS FROM STAFFルーブル中野新橋参番館【満室】の
担当者コメント
東京の1人暮らしはアセットナビへ!自社ブランドマンションをはじめ、賃貸物件を数多くご紹介可能です。こちらの物件は、分譲賃貸マンションで設備が充実しております。オートロックシステムでセキュリティもバッチリです。