ルーブル板橋東新町弐番館【満室】 *** | 1K | ***
本情報は過去に掲載された物件の参考情報です。 最新の物件情報など詳細につきましてはお気軽にお問合せください。
| 賃料 | *** | 管理費・共益費 | *** |
|---|---|---|---|
| 敷金/礼金 | *** / *** | 専有面積 | 25.75m² |
| 間取り | 1K | 階建 | ***/11階建 |
ルーブル板橋東新町弐番館【満室】の詳細
| 賃料 | *** | 管理費・共益費 | *** |
|---|---|---|---|
| 敷金/保証金 | *** / *** | 礼金/償却・敷引 | *** / *** |
| 更新料 | *** | フリーレント | *** |
| その他費用 | *** | ||
| 所在地 | 東京都板橋区東新町1丁目 | ||
| 交通 |
東武鉄道東上線「ときわ台(東京)」 徒歩8分 東武鉄道東上線「上板橋」 徒歩12分 東武鉄道東上線「中板橋」 徒歩19分 |
||
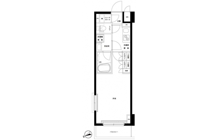
| 間取り | 1K | 間取り内訳 |
K 2 畳 2 階 洋室 7.5 畳 2 階 |
| 専有面積 | 25.75m² | バルコニー面積 | |
| 築年月(築年数) | 2020年02月(築5年) | 方位 | 西 |
| 建物構造 | RC(鉄筋コンクリート) | 所在階/階建 | ***/11階建 |
| 総戸数 | 73戸 | 駐車場 | |
| 保険料 | *** | 契約期間 | *** |
| 引渡 | 2023年04月 | ||
| 現況(予定年月) | 賃貸中 | ||
| 管理 | 管理人/巡回、管理会社/(株)TFDコミュニティ | ||
| 設備・条件 | BSアンテナ、CSアンテナ、光ファイバー、オートロック、TVドアホン、防犯カメラ、ディンプルキー、ダブルロックキー、宅配ボックス、駐輪場、エレベータ、2階以上、システムキッチン、バス・トイレ別、温水洗浄便座、浴室乾燥機、フローリング、24時間換気システム、エアコン、バルコニー | ||
| 備考 | 保証人代行:必須/初回保証料30%(家賃+管理費)年間保証料10,000円 ※学生初回保証料9,000円 | ||
| 周辺施設 |
セブンイレブン 板橋東新町1丁目店(距離:212m) まいばすけっと 板橋桜川店(距離:299m) ファミリーマート 板橋東新町二丁目店(距離:562m) Big-A 上板橋店(距離:600m) 東武ストア 前野町店(距離:641m) コモディイイダ 東新町店(距離:738m) |
||
| 物件番号 | 35488 | 取引態様 | 仲介 |
| 情報更新日 | *** | ||
| 次回更新予定日 | 情報更新日より15日以内 | ||



















COMMENTS FROM STAFFルーブル板橋東新町弐番館【満室】の
担当者コメント
東京の1人暮らしはアセットナビへ!自社ブランドマンションをはじめ、賃貸物件を数多くご紹介可能です。こちらの物件は、分譲賃貸マンションで設備が充実しております。オートロックシステムでセキュリティもバッチリです。