ルーブル板橋東新町弐番館【満室】 *** | 1K | ***
本情報は過去に掲載された物件の参考情報です。 最新の物件情報など詳細につきましてはお気軽にお問合せください。
| 賃料 | *** | 管理費・共益費 | *** |
|---|---|---|---|
| 敷金/礼金 | *** / *** | 専有面積 | 25.75m² |
| 間取り | 1K | 階建 | ***/11階建 |
ルーブル板橋東新町弐番館【満室】の詳細
| 賃料 | *** | 管理費・共益費 | *** |
|---|---|---|---|
| 敷金/保証金 | *** / *** | 礼金/償却・敷引 | *** / *** |
| 更新料 | *** | フリーレント | *** |
| その他費用 | *** | ||
| 所在地 | 東京都板橋区東新町1丁目 | ||
| 交通 |
東武鉄道東上線「ときわ台(東京)」 徒歩8分 東武鉄道東上線「上板橋」 徒歩12分 東武鉄道東上線「中板橋」 徒歩19分 |
||
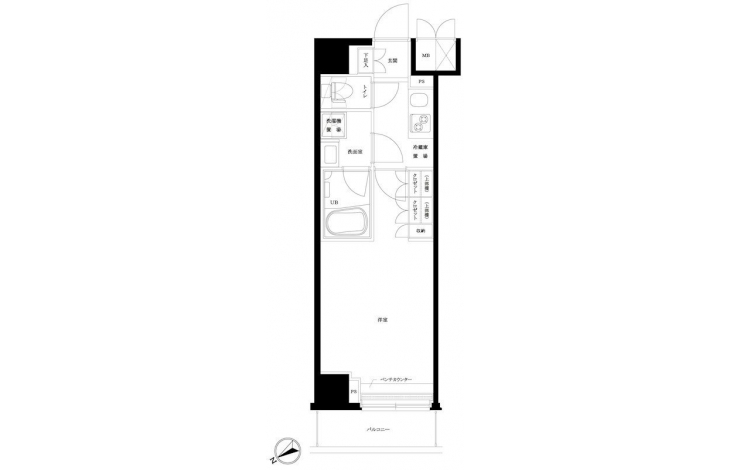
| 間取り | 1K | 間取り内訳 |
洋室 7.5 畳 K 2 畳 |
| 専有面積 | 25.75m² | バルコニー面積 | |
| 築年月(築年数) | 2020年02月(築5年) | 方位 | 北西 |
| 建物構造 | RC(鉄筋コンクリート) | 所在階/階建 | ***/11階建 |
| 総戸数 | 73戸 | 駐車場 | |
| 保険料 | *** | 契約期間 | *** |
| 引渡 | 2021年08月 | ||
| 現況(予定年月) | 空室 | ||
| 管理 | 管理人/巡回、管理会社/株式会社TFDエステート | ||
| 設備・条件 | BSアンテナ、CSアンテナ、光ファイバー、オートロック、TVドアホン、防犯カメラ、ディンプルキー、ダブルロックキー、宅配ボックス、エレベータ、デザイナーズ、2階以上、システムキッチン、バス・トイレ別、温水洗浄便座、浴室乾燥機、室内洗濯機置き場、フローリング、24時間換気システム、エアコン、バルコニー、分譲賃貸 | ||
| 備考 | 保証人代行:必須/賃料+管理費の30%~40% | ||
| 周辺施設 |
まいばすけっと 板橋桜川店(距離:302m) セブンイレブン 板橋東新町1丁目店(距離:218m) |
||
| 物件番号 | 18039 | 取引態様 | 代理 |
| 情報更新日 | *** | ||
| 次回更新予定日 | 情報更新日より15日以内 | ||



















COMMENTS FROM STAFFルーブル板橋東新町弐番館【満室】の
担当者コメント
分譲賃貸マンション/オートロックシステムでセキュリティバッチリ/いつでも荷物が受け取れる宅配ボックス/インターネット無料/ときわ台駅徒歩8分の好立地/浴室乾燥機つきで雨の日でも洗濯可/快適な独立洗面化粧台つき/周辺施設充実