本情報は過去に掲載された物件の参考情報です。 最新の物件情報など詳細につきましてはお気軽にお問合せください。
| 賃料 | *** | 管理費・共益費 | *** |
|---|---|---|---|
| 敷金/礼金 | *** / *** | 専有面積 | 20.41m² |
| 間取り | 1K | 階建 | ***/5階建 |
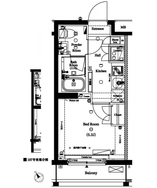
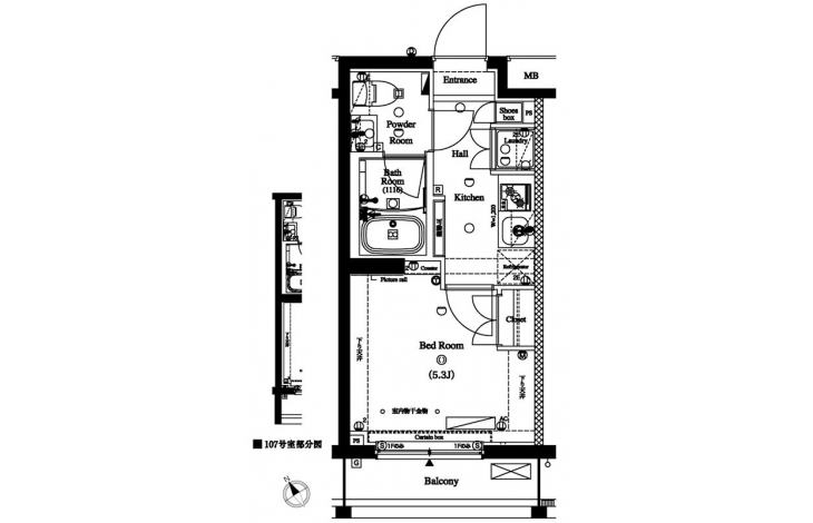
【間取り】
【キッチン】
【リビング】
【風呂】
【ベッドルーム】
【玄関】
【バルコニー・ベランダ】※別部屋参考画像
【トイレ】
【洗面所】
【収納】
【その他部屋・スペース】
【その他設備】
【その他】
【リビング】
【キッチン】
【外観】街並みに調和するシックな色調でありながら、新鮮で都会的な印象を与える洗練されたデザイン性が、ステイタスのあるライフステージを創出します。
【外観】モダンでスタイリッシュ、そして知的なファサード。
【エントランス】建物の個性やクオリティー、さらにはブランド力のあるエリアのステイタスにふさわしいデザイン性をも象徴するのがエントランス。
【エントランス】エントランスの内外部の壁面には色合いや質感に優れた高級感あふれる面材をふんだんに使用、 プライベートエリアへのプロローグを上品に、そしてドラマティックに演出します。
【エントランスホール】エントランス内に歩みを進めた瞬間、都会の喧騒とは無縁の静寂の世界へと誘われます。それはやわらかな照明の光につつまれた美しくエレガントな雰囲気が醸し出す、品格あるライフステージへのプロローグ。ここから始まる新たな都市生活に素敵な彩りを添えています。
【エントランスホール】エレガントな雰囲気に包まれたエントランスホール。
【オートロック】エントランスの集合玄関機のカメラにより訪問者を映像で確認出来ます。その他にも解錠表示機能等で居住者の安全と安心を確保します。
【防犯カメラ】居住者の安全を守るため、監視カメラをエレベーター内、エントランス、自転車置き場、避難通路など様々な場所に設置しています。トラブルの発生を未然に抑止し、心理的な効果にもつながり、高い安全性を確保します。
【メールボックス】個人の郵便物を受け取るためのメールボックス。
【駐輪場】34台分の自転車置き場を設けました。ショッピングや近隣へのお出かけなどに便利です。 ※一部高さ制限があり。
GoogleMapを読み込んでいます。
35.624601 139.717147
アークマーク目黒不動前【満室】の物件動画
アークマーク目黒不動前【満室】の詳細
| 賃料 | *** | 管理費・共益費 | *** |
|---|---|---|---|
| 敷金/保証金 | *** / *** | 礼金/償却・敷引 | *** / *** |
| 更新料 | *** | フリーレント | *** |
| その他費用 | *** | ||
| 所在地 | 東京都品川区西五反田5丁目 | ||
| 交通 |
東急目黒線「不動前」 徒歩4分 山手線「五反田」 徒歩10分 東急池上線「大崎広小路」 徒歩14分 |
||
| 間取り | 1K | 間取り内訳 |
K 2 畳 洋室 5.3 畳 |
| 専有面積 | 20.41m² | バルコニー面積 | |
| 築年月(築年数) | 2020年05月(築5年) | 方位 | 南西 |
| 建物構造 | RC(鉄筋コンクリート) | 所在階/階建 | ***/5階建 |
| 総戸数 | 45戸 | 駐車場 | |
| 保険料 | *** | 契約期間 | *** |
| 引渡 | 2025年05月 | ||
| 現況(予定年月) | 賃貸中 | ||
| 管理 | 管理人/巡回、 | ||
| 設備・条件 | BSアンテナ、CSアンテナ、CATV、光ファイバー、オートロック、TVドアホン、防犯カメラ、ディンプルキー、ダブルロックキー、宅配ボックス、駐輪場、エレベータ、デザイナーズ、ARKMARK(アークマーク)シリーズ、システムキッチン、バス・トイレ別、温水洗浄便座、浴室乾燥機、室内洗濯機置き場、洗濯機置き場有、フローリング、24時間換気システム、エアコン、バルコニー、分譲賃貸、日当たり良好、礼金なし、敷金なし、ペット相談 | ||
| 備考 | 保証人代行:必須/エポス、クレディセゾン、新日本信用保証、ルームバンクインシュア、ジェイリース 家賃総額の30%~ | ||
| 周辺施設 |
品川区立第四日野小学校400m、攻玉社中学校・高等学校400m、コンビニ距離169m、スーパー距離367m、病院距離380m マルエツプチ不動前店(距離:367m) 不動前東急ストア(距離:481m) まいばすけっと西五反田3丁目店(距離:460m) セブンイレブン品川西五反田3丁目店(距離:169m) ローソン西五反田店(距離:276m) |
||
| 物件番号 | 30171 | 取引態様 | 仲介 |
| 情報更新日 | *** | ||
| 次回更新予定日 | 情報更新日より15日以内 | ||





















COMMENTS FROM STAFFアークマーク目黒不動前【満室】の
担当者コメント
東京の1人暮らしはアセットナビへ!自社ブランドマンションをはじめ、賃貸物件を数多くご紹介可能です。こちらの物件は、当社グループ会社管理物件につき仲介手数料半額でご紹介中です。敷金礼金ゼロで初期費用が抑えられます。