本情報は過去に掲載された物件の参考情報です。 最新の物件情報など詳細につきましてはお気軽にお問合せください。
| 賃料 | *** | 管理費・共益費 | *** |
|---|---|---|---|
| 敷金/礼金 | *** / *** | 専有面積 | 20.41m² |
| 間取り | 1K | 階建 | ***/5階建 |
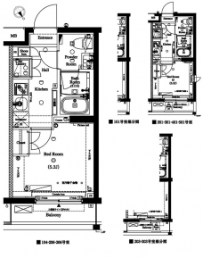
【間取り】間取図
【キッチン】
【リビング】
【風呂】
【ベッドルーム】
【玄関】
【バルコニー・ベランダ】
【トイレ】トイレ
【洗面所】洗面所
【その他設備】設備
【収納】収納
【その他部屋・スペース】
【その他】内装
【その他】内装
【外観】街並みに調和するシックな色調でありながら、新鮮で都会的な印象を与える洗練されたデザイン性が、ステイタスのあるライフステージを創出します。
【外観】モダンでスタイリッシュ、そして知的なファサード。
【エントランス】建物の個性やクオリティー、さらにはブランド力のあるエリアのステイタスにふさわしいデザイン性をも象徴するのがエントランス。
【エントランス】エントランスの内外部の壁面には色合いや質感に優れた高級感あふれる面材をふんだんに使用、 プライベートエリアへのプロローグを上品に、そしてドラマティックに演出します。
【エントランスホール】エントランス内に歩みを進めた瞬間、都会の喧騒とは無縁の静寂の世界へと誘われます。それはやわらかな照明の光につつまれた美しくエレガントな雰囲気が醸し出す、品格あるライフステージへのプロローグ。ここから始まる新たな都市生活に素敵な彩りを添えています。
【エントランスホール】エレガントな雰囲気に包まれたエントランスホール。
【オートロック】エントランスの集合玄関機のカメラにより訪問者を映像で確認出来ます。その他にも解錠表示機能等で居住者の安全と安心を確保します。
【防犯カメラ】居住者の安全を守るため、監視カメラをエレベーター内、エントランス、自転車置き場、避難通路など様々な場所に設置しています。トラブルの発生を未然に抑止し、心理的な効果にもつながり、高い安全性を確保します。
【メールボックス】個人の郵便物を受け取るためのメールボックス。
【駐輪場】34台分の自転車置き場を設けました。ショッピングや近隣へのお出かけなどに便利です。 ※一部高さ制限があり。
GoogleMapを読み込んでいます。
35.624601 139.717147
アークマーク目黒不動前【満室】の物件動画
アークマーク目黒不動前【満室】の詳細
| 賃料 | *** | 管理費・共益費 | *** |
|---|---|---|---|
| 敷金/保証金 | *** / *** | 礼金/償却・敷引 | *** / *** |
| 更新料 | *** | フリーレント | *** |
| その他費用 | *** | ||
| 所在地 | 東京都品川区西五反田5丁目 | ||
| 交通 |
山手線「五反田」 徒歩10分 東急目黒線「不動前」 徒歩4分 東急池上線「大崎広小路」 徒歩14分 |
||
| 間取り | 1K | 間取り内訳 |
K 2 畳 洋室 5.3 畳 |
| 専有面積 | 20.41m² | バルコニー面積 | |
| 築年月(築年数) | 2020年05月(築5年) | 方位 | 北東 |
| 建物構造 | RC(鉄筋コンクリート) | 所在階/階建 | ***/5階建 |
| 総戸数 | 43戸 | 駐車場 | |
| 保険料 | *** | 契約期間 | *** |
| 引渡 | 即時 | ||
| 現況(予定年月) | 空室 | ||
| 管理 | 管理人/巡回、管理会社/株式会社アセットコニュニティ | ||
| 設備・条件 | ARKMARK(アークマーク)シリーズ、インターネット対応、BSアンテナ、CSアンテナ、CATV、オートロック、TVドアホン、防犯カメラ、24時間セキュリティ、ディンプルキー、ダブルロックキー、宅配ボックス、平置駐車場、バイク置き場、駐輪場、エレベータ、デザイナーズ、都市ガス、2階以上、システムキッチン、バス・トイレ別、温水洗浄便座、浴室乾燥機、室内洗濯機置き場、フローリング、24時間換気システム、エアコン、バルコニー、分譲賃貸、フリーレント | ||
| 備考 | 保証人代行:必須/初回保証料14000円、利用条件あり | ||
| 周辺施設 |
品川区立第四日野小学校400m、攻玉社中学校・高等学校400m、コンビニ距離169m、スーパー距離367m、病院距離380m スーパー:マルエツプチ不動前店367m、まいばすけっと西五反田3丁目店460m コンビニ:セブンイレブン品川西五反田3丁目店169m、ローソン西五反田店276m、ファミリーマート西五反田七丁目店382m その他:どらっぐぱぱす西五反田店414m |
||
| 物件番号 | 17563 | 取引態様 | 専任媒介 |
| 情報更新日 | *** | ||
| 次回更新予定日 | 情報更新日より15日以内 | ||




















COMMENTS FROM STAFFアークマーク目黒不動前【満室】の
担当者コメント
GoTwoキャンペーン実施中!初期費用52000円のお得なプランです。さらに1月・2月分賃料がフリーレントとなります☆東京の1人暮らしはアセットナビへ!自社ブランドマンションをはじめ、賃貸物件を数多くご紹介可能です。