レガリアタワーレジデンス【満室】 *** | 1R | ***
本情報は過去に掲載された物件の参考情報です。 最新の物件情報など詳細につきましてはお気軽にお問合せください。
| 賃料 | *** | 管理費・共益費 | *** |
|---|---|---|---|
| 敷金/礼金 | *** / *** | 専有面積 | 20.52m² |
| 間取り | 1R | 階建 | ***/15階建 |
レガリアタワーレジデンス【満室】の詳細
| 賃料 | *** | 管理費・共益費 | *** |
|---|---|---|---|
| 敷金/保証金 | *** / *** | 礼金/償却・敷引 | *** / *** |
| 更新料 | *** | フリーレント | *** |
| その他費用 | *** | ||
| 所在地 | 東京都新宿区西早稲田3丁目 | ||
| 交通 |
山手線「高田馬場」 徒歩6分 東京地下鉄副都心線「西早稲田」 徒歩5分 都営荒川線「学習院下」 徒歩8分 |
||
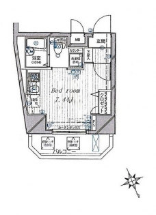
| 間取り | 1R | 間取り内訳 |
洋室 7.4 畳 |
| 専有面積 | 20.52m² | バルコニー面積 | |
| 築年月(築年数) | 2007年08月(築18年) | 方位 | 北東 |
| 建物構造 | SRC(鉄骨鉄筋コンクリート) | 所在階/階建 | ***/15階建 |
| 総戸数 | 駐車場 | ||
| 保険料 | *** | 契約期間 | *** |
| 引渡 | 2025年09月 | ||
| 現況(予定年月) | 居住中 | ||
| 管理 | |||
| 設備・条件 | BSアンテナ、CSアンテナ、オートロック、TVドアホン、宅配ボックス、駐輪場、エレベータ、デザイナーズ、2階以上、角部屋、バス・トイレ別、温水洗浄便座、浴室乾燥機、室内洗濯機置き場、洗濯機置き場有、フローリング、24時間換気システム、エアコン、バルコニー、分譲賃貸、敷金なし、ペット相談 | ||
| 備考 | 保証人代行:必須/クレディセゾン、家賃総額の50%~ | ||
| 周辺施設 |
まいばすけっと 西早稲田駅前店(距離:382m) 三徳西早稲田店(距離:362m) マツモトキヨシ 高田馬場二丁目店(距離:453m) ファミリーマート 西早稲田店(距離:83m) セブンイレブン 新宿西早稲田3丁目店(距離:174m) |
||
| 物件番号 | 62374 | 取引態様 | 仲介 |
| 情報更新日 | *** | ||
| 次回更新予定日 | 情報更新日より15日以内 | ||



















COMMENTS FROM STAFFレガリアタワーレジデンス【満室】の
担当者コメント
東京の1人暮らしはアセットナビへ!自社ブランドマンションをはじめ、賃貸物件を数多くご紹介可能です。こちらの物件は、分譲賃貸マンションで設備が充実しております。オートロックシステムでセキュリティもバッチリです。