ルーブル神楽坂弐番館【満室】 *** | 1K | ***
本情報は過去に掲載された物件の参考情報です。 最新の物件情報など詳細につきましてはお気軽にお問合せください。
| 賃料 | *** | 管理費・共益費 | *** |
|---|---|---|---|
| 敷金/礼金 | *** / *** | 専有面積 | 20.25m² |
| 間取り | 1K | 階建 | ***/7階建 |
ルーブル神楽坂弐番館【満室】の詳細
| 賃料 | *** | 管理費・共益費 | *** |
|---|---|---|---|
| 敷金/保証金 | *** / *** | 礼金/償却・敷引 | *** / *** |
| 更新料 | *** | フリーレント | *** |
| その他費用 | *** | ||
| 所在地 | 東京都新宿区矢来町 | ||
| 交通 |
東京地下鉄東西線「神楽坂」 徒歩2分 都営大江戸線「牛込神楽坂」 徒歩8分 東京地下鉄有楽町線「江戸川橋」 徒歩11分 |
||
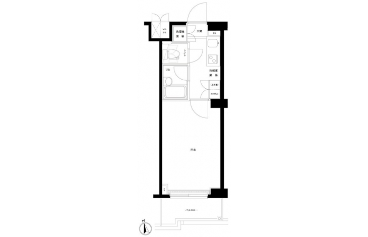
| 間取り | 1K | 間取り内訳 |
洋室 6 畳 6 階 K 2 畳 6 階 |
| 専有面積 | 20.25m² | バルコニー面積 | |
| 築年月(築年数) | 2004年08月(築21年) | 方位 | 南 |
| 建物構造 | RC(鉄筋コンクリート) | 所在階/階建 | ***/7階建 |
| 総戸数 | 70戸 | 駐車場 | 無 |
| 保険料 | *** | 契約期間 | *** |
| 引渡 | 即時 | ||
| 現況(予定年月) | 空室 | ||
| 管理 | 管理人/巡回、管理会社/(株)TFDコミュニティ | ||
| 設備・条件 | BSアンテナ、CSアンテナ、オートロック、TVドアホン、防犯カメラ、ディンプルキー、宅配ボックス、駐輪場、エレベータ、2階以上、システムキッチン、バス・トイレ別、温水洗浄便座、浴室乾燥機、室内洗濯機置き場、フローリング、エアコン、バルコニー、分譲賃貸、敷金なし | ||
| 備考 | 保証人代行:必須/初回保証料30%(家賃+管理費)年間保証料10,000円 ※学生初回保証料9,000円 | ||
| 周辺施設 |
まいばすけっと 神楽坂駅西店(距離:93m) ファミリーマート 新宿天神町店(距離:183m) セブン-イレブン 新宿神楽坂駅西店(距離:286m) 業務スーパー 新宿榎店(距離:297m) ココカラファイン 神楽坂中里町店(距離:331m) どらっぐぱぱす 江戸川橋店(距離:645m) |
||
| 物件番号 | 36704 | 取引態様 | 仲介 |
| 情報更新日 | *** | ||
| 次回更新予定日 | 情報更新日より15日以内 | ||




















COMMENTS FROM STAFFルーブル神楽坂弐番館【満室】の
担当者コメント
東京の1人暮らしはアセットナビへ!自社ブランドマンションをはじめ、賃貸物件を数多くご紹介可能です。こちらの物件は、分譲賃貸マンションで設備が充実しております。オートロックシステムでセキュリティもバッチリです。