クレヴィスタ亀戸II【満室】 *** | 1K | ***
本情報は過去に掲載された物件の参考情報です。 最新の物件情報など詳細につきましてはお気軽にお問合せください。
| 賃料 | *** | 管理費・共益費 | *** |
|---|---|---|---|
| 敷金/礼金 | *** / *** | 専有面積 | 25.51m² |
| 間取り | 1K | 階建 | ***/10階建 |
クレヴィスタ亀戸II【満室】の詳細
| 賃料 | *** | 管理費・共益費 | *** |
|---|---|---|---|
| 敷金/保証金 | *** / *** | 礼金/償却・敷引 | *** / *** |
| 更新料 | *** | フリーレント | *** |
| その他費用 | *** | ||
| 所在地 | 東京都江東区亀戸4丁目 | ||
| 交通 |
総武・中央緩行線「亀戸」 徒歩10分 東武鉄道亀戸線「亀戸水神」 徒歩9分 東武鉄道亀戸線「東あずま」 徒歩12分 |
||
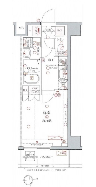
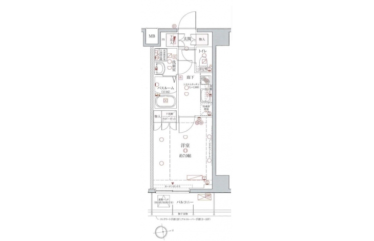
| 間取り | 1K | 間取り内訳 |
洋室 7 畳 K 2 畳 |
| 専有面積 | 25.51m² | バルコニー面積 | |
| 築年月(築年数) | 2017年03月(築8年) | 方位 | 西 |
| 建物構造 | RC(鉄筋コンクリート) | 所在階/階建 | ***/10階建 |
| 総戸数 | 駐車場 | ||
| 保険料 | *** | 契約期間 | *** |
| 引渡 | 相談 | ||
| 現況(予定年月) | 居住中 | ||
| 管理 | |||
| 設備・条件 | BSアンテナ、CSアンテナ、オートロック、TVドアホン、防犯カメラ、ダブルロックキー、宅配ボックス、駐輪場、エレベータ、デザイナーズ、2階以上、システムキッチン、バス・トイレ別、温水洗浄便座、浴室乾燥機、室内洗濯機置き場、洗濯機置き場有、フローリング、24時間換気システム、エアコン、バルコニー、分譲賃貸、敷金なし、ペット相談 | ||
| 備考 | 保証人代行:必須/総賃料の40% | ||
| 周辺施設 |
Olympic亀戸店(距離:397m) ファミリーマート 亀戸四丁目店(距離:457m) ファミリーマート 墨田立花二丁目店(距離:529m) Olympic(オリンピック) 墨田文花店(距離:415m) アイセイ薬局 亀戸店(距離:616m) |
||
| 物件番号 | 43257 | 取引態様 | 仲介 |
| 情報更新日 | *** | ||
| 次回更新予定日 | 情報更新日より15日以内 | ||




















COMMENTS FROM STAFFクレヴィスタ亀戸II【満室】の
担当者コメント
東京の1人暮らしはアセットナビへ!自社ブランドマンションをはじめ、賃貸物件を数多くご紹介可能です。