メインステージ秋葉原駅前【満室】 *** | 1K | ***
本情報は過去に掲載された物件の参考情報です。 最新の物件情報など詳細につきましてはお気軽にお問合せください。
| 賃料 | *** | 管理費・共益費 | *** |
|---|---|---|---|
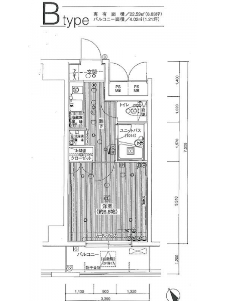
| 敷金/礼金 | *** / *** | 専有面積 | 22.59m² |
| 間取り | 1K | 階建 | ***/12階建 |
メインステージ秋葉原駅前【満室】の詳細
| 賃料 | *** | 管理費・共益費 | *** |
|---|---|---|---|
| 敷金/保証金 | *** / *** | 礼金/償却・敷引 | *** / *** |
| 更新料 | *** | フリーレント | *** |
| その他費用 | *** | ||
| 所在地 | 東京都千代田区外神田1丁目 | ||
| 交通 |
山手線「秋葉原」 徒歩3分 東京地下鉄丸ノ内線「淡路町」 徒歩7分 都営新宿線「小川町(東京)」 徒歩7分 |
||
| 間取り | 1K | 間取り内訳 |
K 1.5 畳 洋室 6.8 畳 |
| 専有面積 | 22.59m² | バルコニー面積 | |
| 築年月(築年数) | 2003年09月(築22年) | 方位 | 南西 |
| 建物構造 | SRC(鉄骨鉄筋コンクリート) | 所在階/階建 | ***/12階建 |
| 総戸数 | 92戸 | 駐車場 | 無 |
| 保険料 | *** | 契約期間 | *** |
| 引渡 | 即時 | ||
| 現況(予定年月) | 空室 | ||
| 管理 | 管理人/巡回、 | ||
| 設備・条件 | オートロック、TVドアホン、防犯カメラ、宅配ボックス、エレベータ、2階以上、システムキッチン、バス・トイレ別、温水洗浄便座、室内洗濯機置き場、フローリング、エアコン、バルコニー、分譲賃貸、日当たり良好 | ||
| 備考 | 保証人代行:必須/総賃料の50%~ | ||
| 周辺施設 |
マツモトキヨシ アキバ店(距離:92m) ファミリーマート 外神田一丁目店(距離:230m) ファミリーマート 神田万世橋店(距離:336m) 肉のハナマサ 秋葉原店(距離:751m) maruetsu(マルエツ) プチ 神田司町店(距離:688m) |
||
| 物件番号 | 33491 | 取引態様 | 仲介 |
| 情報更新日 | *** | ||
| 次回更新予定日 | 情報更新日より15日以内 | ||













COMMENTS FROM STAFFメインステージ秋葉原駅前【満室】の
担当者コメント
東京の1人暮らしはアセットナビへ!自社ブランドマンションをはじめ、賃貸物件を数多くご紹介可能です。こちらの物件は、分譲賃貸マンションで設備が充実しております。オートロックシステムでセキュリティもバッチリです。