ルーブル中野ガーデン【満室】 *** | 1K | ***
本情報は過去に掲載された物件の参考情報です。 最新の物件情報など詳細につきましてはお気軽にお問合せください。
| 賃料 | *** | 管理費・共益費 | *** |
|---|---|---|---|
| 敷金/礼金 | *** / *** | 専有面積 | 20.62m² |
| 間取り | 1K | 階建 | ***/9階建 |
ルーブル中野ガーデン【満室】の詳細
| 賃料 | *** | 管理費・共益費 | *** |
|---|---|---|---|
| 敷金/保証金 | *** / *** | 礼金/償却・敷引 | *** / *** |
| 更新料 | *** | フリーレント | *** |
| その他費用 | *** | ||
| 所在地 | 東京都中野区中央4丁目 | ||
| 交通 |
中央本線「中野(東京)」 徒歩9分 総武・中央緩行線「中野(東京)」 徒歩9分 東京地下鉄丸ノ内線「新中野」 徒歩8分 |
||
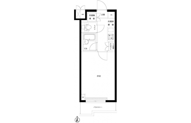
| 間取り | 1K | 間取り内訳 |
洋室 6 畳 4 階 K 2 畳 4 階 |
| 専有面積 | 20.62m² | バルコニー面積 | |
| 築年月(築年数) | 2010年10月(築15年) | 方位 | 南 |
| 建物構造 | RC(鉄筋コンクリート) | 所在階/階建 | ***/9階建 |
| 総戸数 | 42戸 | 駐車場 | 無 |
| 保険料 | *** | 契約期間 | *** |
| 引渡 | 即時 | ||
| 現況(予定年月) | 空室 | ||
| 管理 | 管理人/巡回、管理会社/(株)TFDコミュニティ | ||
| 設備・条件 | BSアンテナ、CSアンテナ、光ファイバー、オートロック、TVドアホン、防犯カメラ、ディンプルキー、ダブルロックキー、宅配ボックス、駐輪場、エレベータ、2階以上、システムキッチン、バス・トイレ別、温水洗浄便座、浴室乾燥機、室内洗濯機置き場、フローリング、24時間換気システム、エアコン、バルコニー、分譲賃貸 | ||
| 備考 | 保証人代行:必須/賃料+管理費の30%~40% | ||
| 周辺施設 | ファミリーマート新中野店(距離:599m) | ||
| 物件番号 | 16441 | 取引態様 | 代理 |
| 情報更新日 | *** | ||
| 次回更新予定日 | 情報更新日より15日以内 | ||


















COMMENTS FROM STAFFルーブル中野ガーデン【満室】の
担当者コメント
タイル貼分譲賃貸 浴室換気乾燥機 TVモニター付インターホン バス・トイレ別 2口ガスシステムキッチン 宅配BOX