メインステージ南蒲田【満室】 *** | 1K | ***
本情報は過去に掲載された物件の参考情報です。 最新の物件情報など詳細につきましてはお気軽にお問合せください。
| 賃料 | *** | 管理費・共益費 | *** |
|---|---|---|---|
| 敷金/礼金 | *** / *** | 専有面積 | 20.64m² |
| 間取り | 1K | 階建 | ***/5階建 |
メインステージ南蒲田【満室】の詳細
| 賃料 | *** | 管理費・共益費 | *** |
|---|---|---|---|
| 敷金/保証金 | *** / *** | 礼金/償却・敷引 | *** / *** |
| 更新料 | *** | フリーレント | *** |
| その他費用 | *** | ||
| 所在地 | 東京都大田区南蒲田2丁目 | ||
| 交通 |
京浜急行電鉄本線「京急蒲田」 徒歩9分 京浜急行電鉄空港線「糀谷」 徒歩8分 東急池上線「蒲田」 徒歩19分 |
||
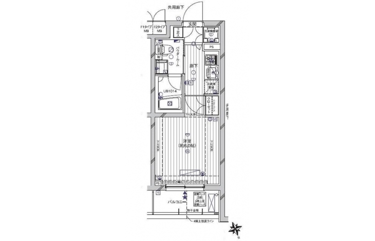
| 間取り | 1K | 間取り内訳 |
洋室 6 畳 |
| 専有面積 | 20.64m² | バルコニー面積 | |
| 築年月(築年数) | 2012年11月(築13年) | 方位 | 北東 |
| 建物構造 | RC(鉄筋コンクリート) | 所在階/階建 | ***/5階建 |
| 総戸数 | 45戸 | 駐車場 | 無 |
| 保険料 | *** | 契約期間 | *** |
| 引渡 | 2023年05月 | ||
| 現況(予定年月) | 賃貸中 | ||
| 管理 | 管理人/日勤、 | ||
| 設備・条件 | CATV、光ファイバー、オートロック、TVドアホン、防犯カメラ、宅配ボックス、駐輪場、エレベータ、デザイナーズ、2階以上、システムキッチン、バス・トイレ別、温水洗浄便座、浴室乾燥機、室内洗濯機置き場、フローリング、24時間換気システム、エアコン、バルコニー、分譲賃貸 | ||
| 備考 | 保証人代行:必須/エポスカード、他、家賃総額の50%~ | ||
| 周辺施設 |
まいばすけっと京急蒲田駅前店(距離:777m) セブンイレブン京急蒲田駅前店(距離:805m) オーケー仲六郷店(距離:1,594m) まいばすけっと大森中2丁目店(距離:1,633m) ライフ西蒲田店(距離:1,825m) マルエツ梅屋敷店(距離:2,034m) |
||
| 物件番号 | 37347 | 取引態様 | 仲介 |
| 情報更新日 | *** | ||
| 次回更新予定日 | 情報更新日より15日以内 | ||



















COMMENTS FROM STAFFメインステージ南蒲田【満室】の
担当者コメント
東京の1人暮らしはアセットナビへ!自社ブランドマンションをはじめ、賃貸物件を数多くご紹介可能です。こちらの物件は、分譲賃貸マンションで設備が充実しております。オートロックシステムでセキュリティもバッチリです。