メインステージ九段下【満室】 *** | 1LDK | ***
本情報は過去に掲載された物件の参考情報です。 最新の物件情報など詳細につきましてはお気軽にお問合せください。
| 賃料 | *** | 管理費・共益費 | *** |
|---|---|---|---|
| 敷金/礼金 | *** / *** | 専有面積 | 42.11m² |
| 間取り | 1LDK | 階建 | ***/14階建 |
メインステージ九段下【満室】の詳細
| 賃料 | *** | 管理費・共益費 | *** |
|---|---|---|---|
| 敷金/保証金 | *** / *** | 礼金/償却・敷引 | *** / *** |
| 更新料 | *** | フリーレント | *** |
| その他費用 | *** | ||
| 所在地 | 東京都千代田区神田神保町3丁目 | ||
| 交通 |
東京地下鉄半蔵門線「九段下」 徒歩3分 都営三田線「神保町」 徒歩8分 総武・中央緩行線「水道橋」 徒歩16分 |
||
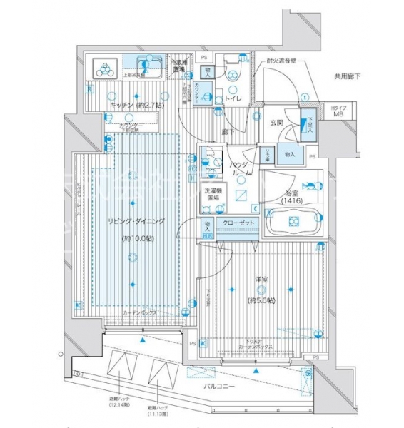
| 間取り | 1LDK | 間取り内訳 |
LDK 12.7 畳 洋室 5.6 畳 |
| 専有面積 | 42.11m² | バルコニー面積 | |
| 築年月(築年数) | 2011年07月(築14年) | 方位 | 南 |
| 建物構造 | RC(鉄筋コンクリート) | 所在階/階建 | ***/14階建 |
| 総戸数 | 65戸 | 駐車場 | 無 |
| 保険料 | *** | 契約期間 | *** |
| 引渡 | 即時 | ||
| 現況(予定年月) | 空室 | ||
| 管理 | 管理人/巡回、 | ||
| 設備・条件 | BSアンテナ、CSアンテナ、光ファイバー、オートロック、TVドアホン、防犯カメラ、ディンプルキー、ダブルロックキー、宅配ボックス、駐輪場、エレベータ、デザイナーズ、2階以上、最上階、角部屋、システムキッチン、カウンターキッチン、バス・トイレ別、温水洗浄便座、浴室乾燥機、室内洗濯機置き場、フローリング、エアコン、バルコニー、分譲賃貸、敷金なし、ペット相談 | ||
| 備考 | 保証人代行:必須/賃料総額の50%~ | ||
| 周辺施設 |
セブンイレブン 神田神保町3丁目店(距離:116m) 成城石井 神保町店(距離:112m) ファミリーマート 専大通り店(距離:252m) まいばすけっと 九段北1丁目店(距離:373m) スギドラッグ 九段下店(距離:247m) |
||
| 物件番号 | 40599 | 取引態様 | 仲介 |
| 情報更新日 | *** | ||
| 次回更新予定日 | 情報更新日より15日以内 | ||















COMMENTS FROM STAFFメインステージ九段下【満室】の
担当者コメント
東京の1人暮らしはアセットナビへ!自社ブランドマンションをはじめ、賃貸物件を数多くご紹介可能です。こちらの物件は、分譲賃貸マンションで設備が充実しております。オートロックシステムでセキュリティもバッチリです。