本情報は過去に掲載された物件の参考情報です。 最新の物件情報など詳細につきましてはお気軽にお問合せください。
| 賃料 | *** | 管理費・共益費 | *** |
|---|---|---|---|
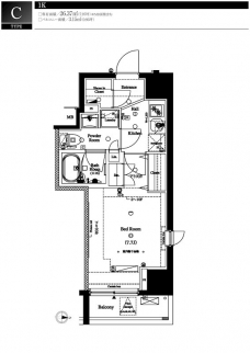
| 敷金/礼金 | *** / *** | 専有面積 | 26.37m² |
| 間取り | 1K | 階建 | ***/12階建 |
【間取り】
【リビング】
【キッチン】
【風呂】
【洗面所】
【トイレ】
【玄関】
【バルコニー・ベランダ】
【収納】
【その他部屋・スペース】
【その他】
【風呂】
【キッチン】
【外観】街並みに調和するシックな色調でありながら新鮮で都会的な印象を与える洗練されたデザイン性がステイタスのあるライフステージを創出します。
【外観】モダンでスタイリッシュ、そして知的なファサード。
【エントランス】建物の個性やクオリティー、さらにはブランド力のあるエリアのステイタスにふさわしいデザイン性をも象徴するのがエントランス。
【エントランス】建物の個性やクオリティー、さらにはブランド力のあるエリアのステイタスにふさわしいデザイン性をも象徴するのがエントランス。
【エントランス】内外部の壁面には色合いや質感に優れた高級感あふれる面材をふんだんに使用、プライベートエリアへのプロローグを上品に、そしてドラマティックに演出します。
【エントランスホール】エレガントな雰囲気に包まれたエントランスホール。
【エントランスホール】エントランス内に歩みを進めた瞬間、都会の喧騒とは無縁の静寂の世界へと誘われます。
【オートロック】エントランスの集合玄関機のカメラにより訪問者を映像で確認出来ます。その他にも解錠表示機能等で居住者の安全と安心を確保します。
【宅配ボックス】居住者は操作も簡単で24時間いつでも好きな時に、宅配業者を待つことなく、忙しいときやお出かけするときに宅配物を受け取ることが出来ます。
GoogleMapを読み込んでいます。
35.688687 139.826696
アクサス西大島Sta.【満室】の物件動画
アクサス西大島Sta.【満室】の詳細
| 賃料 | *** | 管理費・共益費 | *** |
|---|---|---|---|
| 敷金/保証金 | *** / *** | 礼金/償却・敷引 | *** / *** |
| 更新料 | *** | フリーレント | *** |
| その他費用 | *** | ||
| 所在地 | 東京都江東区大島4丁目 | ||
| 交通 |
都営新宿線「西大島」 徒歩1分 総武・中央緩行線「亀戸」 徒歩12分 都営新宿線「大島(東京)」 徒歩10分 |
||
| 間取り | 1K | 間取り内訳 |
洋室 7.7 畳 K 2 畳 |
| 専有面積 | 26.37m² | バルコニー面積 | |
| 築年月(築年数) | 2020年03月(築5年) | 方位 | 東 |
| 建物構造 | RC(鉄筋コンクリート) | 所在階/階建 | ***/12階建 |
| 総戸数 | 44戸 | 駐車場 | |
| 保険料 | *** | 契約期間 | *** |
| 引渡 | 即時 | ||
| 現況(予定年月) | 空室 | ||
| 管理 | 管理人/巡回、管理会社/株式会社アセットコミュニティ | ||
| 設備・条件 | BSアンテナ、CSアンテナ、光ファイバー、オートロック、TVドアホン、防犯カメラ、ディンプルキー、ダブルロックキー、宅配ボックス、バイク置き場、駐輪場、エレベータ、AXAS(アクサス)シリーズ、2階以上、最上階、角部屋、システムキッチン、バス・トイレ別、温水洗浄便座、浴室乾燥機、室内洗濯機置き場、フローリング、24時間換気システム、エアコン、バルコニー、分譲賃貸 | ||
| 備考 | 保証人代行:必須/エポス、クレディセゾン、新日本信用保証、全保連、ルームバンクインシュア 家賃総額の30%~ | ||
| 周辺施設 |
江東区立第一大島小学校160m、江東区立大島西中学校400m、コンビニ距離110m、スーパー距離110m、病院距離750m まいばすけっと 大島1丁目店(距離:69m) ローソン 大島四丁目明治通店(距離:1m) ミニストップ 大島1丁目店(距離:110m) ファミリーマート 昭和薬品西大島駅前店(距離:142m) ローソンストア100 LS西大島店(距離:186m) ビッグ・エー 江東大島団地店(距離:124m) |
||
| 物件番号 | 16991 | 取引態様 | 専任媒介 |
| 情報更新日 | *** | ||
| 次回更新予定日 | 情報更新日より15日以内 | ||




















COMMENTS FROM STAFFアクサス西大島Sta.【満室】の
担当者コメント
東京の1人暮らしはアセットナビへ!自社ブランドマンションをはじめ、賃貸物件を数多くご紹介可能です。当社管理物件ご成約で湯治スパ・TOJI TOKYO無料体験ペアチケットをプレゼント。※お一人様につき1回のみとなります。※キャンペーン期間は12月1日~3月31日です。