エクセリア荻窪【満室】 *** | 1DK | ***
本情報は過去に掲載された物件の参考情報です。 最新の物件情報など詳細につきましてはお気軽にお問合せください。
| 賃料 | *** | 管理費・共益費 | *** |
|---|---|---|---|
| 敷金/礼金 | *** / *** | 専有面積 | 33.19m² |
| 間取り | 1DK | 階建 | ***/11階建 |
エクセリア荻窪【満室】の詳細
| 賃料 | *** | 管理費・共益費 | *** |
|---|---|---|---|
| 敷金/保証金 | *** / *** | 礼金/償却・敷引 | *** / *** |
| 更新料 | *** | フリーレント | *** |
| その他費用 | *** | ||
| 所在地 | 東京都杉並区天沼2丁目 | ||
| 交通 |
中央本線「荻窪」 徒歩5分 総武・中央緩行線「阿佐ヶ谷」 徒歩18分 西武鉄道新宿線「下井草」 徒歩29分 |
||
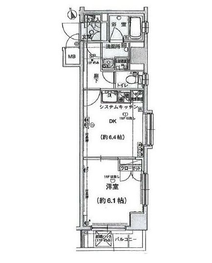
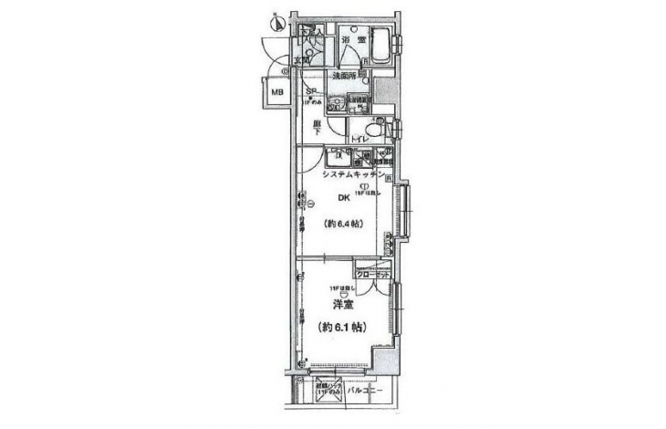
| 間取り | 1DK | 間取り内訳 |
DK 6.4 畳 洋室 6.1 畳 |
| 専有面積 | 33.19m² | バルコニー面積 | |
| 築年月(築年数) | 2003年11月(築22年) | 方位 | 南西 |
| 建物構造 | SRC(鉄骨鉄筋コンクリート) | 所在階/階建 | ***/11階建 |
| 総戸数 | 91戸 | 駐車場 | |
| 保険料 | *** | 契約期間 | *** |
| 引渡 | 2021年11月 | ||
| 現況(予定年月) | 空室 | ||
| 管理 | |||
| 設備・条件 | オートロック、TVドアホン、防犯カメラ、宅配ボックス、エレベータ、デザイナーズ、角部屋、システムキッチン、バス・トイレ別、温水洗浄便座、浴室乾燥機、室内洗濯機置き場、フローリング、24時間換気システム、エアコン、バルコニー、分譲賃貸、日当たり良好 | ||
| 備考 | 保証人代行:必須/初回保証料:総賃料の50%~ | ||
| 周辺施設 |
まいばすけっと 荻窪駅南店(距離:388m) セブンイレブン Daiwa荻窪タワー店(距離:207m) セブンイレブン 杉並荻窪藤澤ビルディング店(距離:511m) ファミリーマート 天沼三丁目店(距離:195m) |
||
| 物件番号 | 19980 | 取引態様 | 代理 |
| 情報更新日 | *** | ||
| 次回更新予定日 | 情報更新日より15日以内 | ||














COMMENTS FROM STAFFエクセリア荻窪【満室】の
担当者コメント
東京の1人暮らしはアセットナビへ!自社ブランドマンションをはじめ、賃貸物件を数多くご紹介可能です。こちらの物件は、分譲賃貸マンションで設備が充実しております。オートロックシステムでセキュリティもバッチリです。