MAINGRANDIA ASAKUSA【満室】 *** | 1K | ***
本情報は過去に掲載された物件の参考情報です。 最新の物件情報など詳細につきましてはお気軽にお問合せください。
| 賃料 | *** | 管理費・共益費 | *** |
|---|---|---|---|
| 敷金/礼金 | *** / *** | 専有面積 | 26.22m² |
| 間取り | 1K | 階建 | ***/14階建 |
MAINGRANDIA ASAKUSA【満室】の詳細
| 賃料 | *** | 管理費・共益費 | *** |
|---|---|---|---|
| 敷金/保証金 | *** / *** | 礼金/償却・敷引 | *** / *** |
| 更新料 | *** | フリーレント | *** |
| その他費用 | *** | ||
| 所在地 | 東京都台東区千束1丁目 | ||
| 交通 |
つくばエクスプレス「浅草」 徒歩4分 東京地下鉄銀座線「浅草」 徒歩12分 東京地下鉄銀座線「田原町(東京)」 徒歩14分 |
||
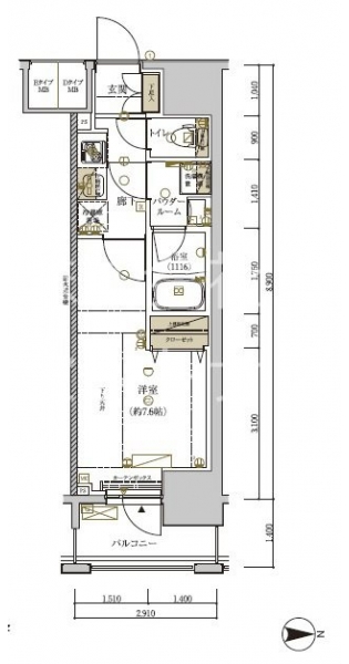
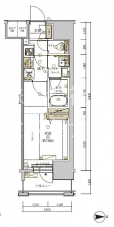
| 間取り | 1K | 間取り内訳 |
洋室 7.6 畳 |
| 専有面積 | 26.22m² | バルコニー面積 | |
| 築年月(築年数) | 2015年12月(築10年) | 方位 | 東 |
| 建物構造 | RC(鉄筋コンクリート) | 所在階/階建 | ***/14階建 |
| 総戸数 | 63戸 | 駐車場 | 無 |
| 保険料 | *** | 契約期間 | *** |
| 引渡 | 2025年03月 | ||
| 現況(予定年月) | 居住中 | ||
| 管理 | 管理人/巡回、 | ||
| 設備・条件 | BSアンテナ、CSアンテナ、オートロック、TVドアホン、防犯カメラ、宅配ボックス、駐輪場、エレベータ、2階以上、システムキッチン、バス・トイレ別、温水洗浄便座、浴室乾燥機、室内洗濯機置き場、フローリング、エアコン、バルコニー、分譲賃貸、敷金なし、ペット相談 | ||
| 備考 | 保証人代行:必須/管理会社指定:総賃料の40%~ | ||
| 周辺施設 |
ファミリーマート 千束一丁目店(距離:86m) ローソン H台東浅草三丁目店(距離:269m) マルエツ 浅草四丁目店(距離:353m) マツモトキヨシ 浅草四丁目店(距離:330m) 肉のハナマサ 千束店(距離:323m) ココカラファイン 浅草5丁目店(距離:547m) |
||
| 物件番号 | 56872 | 取引態様 | 仲介 |
| 情報更新日 | *** | ||
| 次回更新予定日 | 情報更新日より15日以内 | ||




















COMMENTS FROM STAFFMAINGRANDIA ASAKUSA【満室】の
担当者コメント
東京の1人暮らしはアセットナビへ!自社ブランドマンションをはじめ、賃貸物件を数多くご紹介可能です。こちらの物件は、分譲賃貸マンションで設備が充実しております。オートロックシステムでセキュリティもバッチリです。