MAINGRANDIA ASAKUSA【満室】 *** | 1K | ***
本情報は過去に掲載された物件の参考情報です。 最新の物件情報など詳細につきましてはお気軽にお問合せください。
| 賃料 | *** | 管理費・共益費 | *** |
|---|---|---|---|
| 敷金/礼金 | *** / *** | 専有面積 | 26.34m² |
| 間取り | 1K | 階建 | ***/13階建 |
MAINGRANDIA ASAKUSA【満室】の詳細
| 賃料 | *** | 管理費・共益費 | *** |
|---|---|---|---|
| 敷金/保証金 | *** / *** | 礼金/償却・敷引 | *** / *** |
| 更新料 | *** | フリーレント | *** |
| その他費用 | *** | ||
| 所在地 | 東京都台東区千束1丁目 | ||
| 交通 |
つくばエクスプレス「浅草」 徒歩4分 東京地下鉄銀座線「浅草」 徒歩12分 東京地下鉄銀座線「田原町(東京)」 徒歩14分 東京地下鉄日比谷線 入谷 徒歩12分 |
||
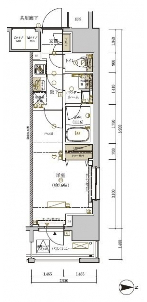
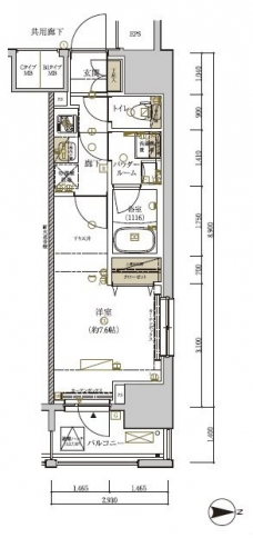
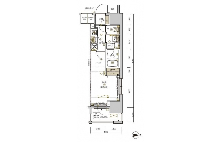
| 間取り | 1K | 間取り内訳 |
K 2 畳 洋室 7.6 畳 |
| 専有面積 | 26.34m² | バルコニー面積 | |
| 築年月(築年数) | 2015年12月(築10年) | 方位 | 東 |
| 建物構造 | RC(鉄筋コンクリート) | 所在階/階建 | ***/13階建 |
| 総戸数 | 63戸 | 駐車場 | 無 |
| 保険料 | *** | 契約期間 | *** |
| 引渡 | 即時 | ||
| 現況(予定年月) | 空室 | ||
| 管理 | 管理人/巡回、 | ||
| 設備・条件 | BSアンテナ、CSアンテナ、オートロック、TVドアホン、防犯カメラ、宅配ボックス、駐輪場、エレベータ、デザイナーズ、角部屋、システムキッチン、バス・トイレ別、温水洗浄便座、浴室乾燥機、室内洗濯機置き場、フローリング、エアコン、バルコニー、分譲賃貸 | ||
| 備考 | 保証人代行:必須/賃料総額の50%~ | ||
| 周辺施設 |
マルエツプチ花川戸二丁目店(距離:961m) いなげや入谷店(距離:765m) まいばすけっと合羽橋北店(距離:611m) ファミリーマート千束一丁目店(距離:98m) ライフ浅草店(距離:355m) |
||
| 物件番号 | 20481 | 取引態様 | 代理 |
| 情報更新日 | *** | ||
| 次回更新予定日 | 情報更新日より15日以内 | ||




















COMMENTS FROM STAFFMAINGRANDIA ASAKUSA【満室】の
担当者コメント
東京の1人暮らしはアセットナビへ!自社ブランドマンションをはじめ、賃貸物件を数多くご紹介可能です。こちらの物件は、分譲賃貸マンションで設備が充実しております。オートロックシステムでセキュリティもバッチリです。