ルーブル祐天寺【満室】 *** | 1K | ***
本情報は過去に掲載された物件の参考情報です。 最新の物件情報など詳細につきましてはお気軽にお問合せください。
| 賃料 | *** | 管理費・共益費 | *** |
|---|---|---|---|
| 敷金/礼金 | *** / *** | 専有面積 | 25.38m² |
| 間取り | 1K | 階建 | ***/5階建 |
ルーブル祐天寺【満室】の詳細
| 賃料 | *** | 管理費・共益費 | *** |
|---|---|---|---|
| 敷金/保証金 | *** / *** | 礼金/償却・敷引 | *** / *** |
| 更新料 | *** | フリーレント | *** |
| その他費用 | *** | ||
| 所在地 | 東京都世田谷区下馬1丁目 | ||
| 交通 |
東急東横線「祐天寺」 徒歩13分 東急田園都市線「三軒茶屋」 徒歩14分 東急東横線「中目黒」 徒歩20分 |
||
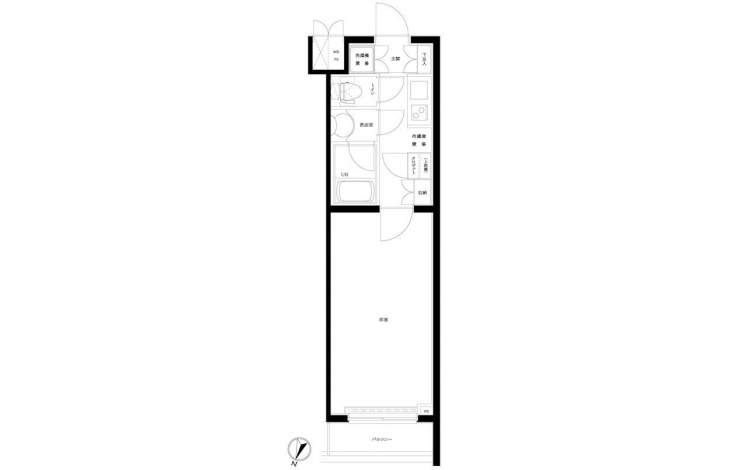
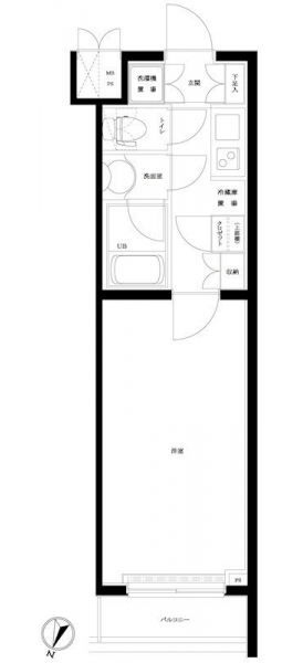
| 間取り | 1K | 間取り内訳 |
洋室 8 畳 K 2.5 畳 |
| 専有面積 | 25.38m² | バルコニー面積 | |
| 築年月(築年数) | 2006年07月(築19年) | 方位 | 北西 |
| 建物構造 | RC(鉄筋コンクリート) | 所在階/階建 | ***/5階建 |
| 総戸数 | 30戸 | 駐車場 | |
| 保険料 | *** | 契約期間 | *** |
| 引渡 | 2025年07月 | ||
| 現況(予定年月) | 賃貸中 | ||
| 管理 | |||
| 設備・条件 | BSアンテナ、CSアンテナ、オートロック、TVドアホン、防犯カメラ、ディンプルキー、宅配ボックス、駐輪場、エレベータ、デザイナーズ、2階以上、システムキッチン、バス・トイレ別、温水洗浄便座、浴室乾燥機、室内洗濯機置き場、エアコン、バルコニー、分譲賃貸、敷金なし、ペット不可 | ||
| 備考 | 保証人代行:必須/エポス、クレディセゾン、GTN、家賃総額の30%~ | ||
| 周辺施設 |
サミットストア 下馬店SM棟(距離:264m) まいばすけっと 祐天寺駅西店(距離:486m) セブンイレブン 世田谷下馬北店(距離:100m) セブンイレブン 下馬1丁目店(距離:173m) クリエイトSD(エス・ディー) 世田谷下馬店(距離:63m) |
||
| 物件番号 | 22091 | 取引態様 | 仲介 |
| 情報更新日 | *** | ||
| 次回更新予定日 | 情報更新日より15日以内 | ||


















COMMENTS FROM STAFFルーブル祐天寺【満室】の
担当者コメント
東京の1人暮らしはアセットナビへ!自社ブランドマンションをはじめ、賃貸物件を数多くご紹介可能です。こちらの物件は、分譲賃貸マンションで設備が充実しております。オートロックシステムでセキュリティもバッチリです。