本情報は過去に掲載された物件の参考情報です。 最新の物件情報など詳細につきましてはお気軽にお問合せください。
| 賃料 | *** | 管理費・共益費 | *** |
|---|---|---|---|
| 敷金/礼金 | *** / *** | 専有面積 | 20.55m² |
| 間取り | 1K | 階建 | ***/6階建 |
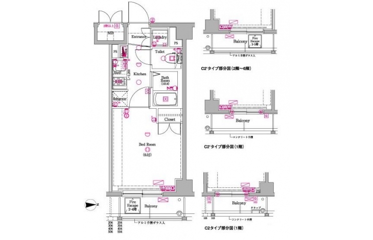
【間取り】間取図
【キッチン】
【リビング】
【風呂】
【ベッドルーム】
【玄関】
【収納】
【トイレ】
【バルコニー・ベランダ】
【その他設備】
【その他】
【その他】
【その他設備】
【外観】並みに調和するシックな色調でありながら新鮮で都会的な印象を与える洗練されたデザイン性がステイタスのあるライフステージを創出します。
【外観】モダンでスタイリッシュ、そして知的なファサード。
【外観】都市生活の利便性に満ちた好環境な立地に誕生。
【エントランス】美意識にこだわり存在感を主張するエントランス。
【エントランス】建物の個性やクオリティー、さらにはブランド力のあるエリアのステイタスにふさわしいデザイン性をも象徴するのがエントランス。
【エントランス】洗練された外観デザインを象徴する品格あるエントランス。
【エントランス】エントランス内に歩みを進めた瞬間、都会の喧騒とは無縁の静寂の世界へと誘われます。
【エントランス】内外部の壁面には色合いや質感に優れた高級感あふれる面材をふんだんに使用。
【宅配BOX】不在時に届いた宅配便を本人の代わりに受け取り、24時間いつでも取り出せる宅配ボックス。
【オートロック】オートロック完備で住居者の安全を確保します。
【メールボックス】個人の郵便物を受け取るためのメールボックス。
【エントランスホール】エレガントな雰囲気に包まれたエントランスホール。
【エレベーター】一定以上の震度を感知すると最寄り階に停止する安全装置を装備したエレベーター。
【エントランスホール】プライベートエリアへのプロローグを上品に、そしてドラマティックに演出します。
GoogleMapを読み込んでいます。
35.716567 139.748456
アクサス白山【満室】の詳細
| 賃料 | *** | 管理費・共益費 | *** |
|---|---|---|---|
| 敷金/保証金 | *** / *** | 礼金/償却・敷引 | *** / *** |
| 更新料 | *** | フリーレント | *** |
| その他費用 | *** | ||
| 所在地 | 東京都文京区白山2丁目 | ||
| 交通 |
都営三田線「白山(東京)」 徒歩11分 都営大江戸線「春日(東京)」 徒歩11分 東京地下鉄丸ノ内線「後楽園」 徒歩11分 |
||
| 間取り | 1K | 間取り内訳 |
洋室 6 畳 洋室 6 畳 |
| 専有面積 | 20.55m² | バルコニー面積 | 3.00m² |
| 築年月(築年数) | 2007年07月(築18年) | 方位 | 東 |
| 建物構造 | RC(鉄筋コンクリート) | 所在階/階建 | ***/6階建 |
| 総戸数 | 61戸 | 駐車場 | |
| 保険料 | *** | 契約期間 | *** |
| 引渡 | 2026年01月 | ||
| 現況(予定年月) | 居住中 | ||
| 管理 | |||
| 設備・条件 | BSアンテナ、CSアンテナ、光ファイバー、オートロック、TVドアホン、防犯カメラ、ディンプルキー、ダブルロックキー、宅配ボックス、駐輪場、エレベータ、デザイナーズ、AXAS(アクサス)シリーズ、2階以上、システムキッチン、バス・トイレ別、温水洗浄便座、浴室乾燥機、室内洗濯機置き場、フローリング、24時間換気システム、エアコン、バルコニー、分譲賃貸、礼金なし、敷金なし、ペット相談 | ||
| 備考 | 保証人代行:必須/エポス、クレディセゾン、新日本信用保証、ルームバンクインシュア、ジェイリース、家賃総額の30%~ | ||
| 周辺施設 |
文京区立誠之小学校1,000m、文京区立第六中学校1,500m、コンビニ距離160m、スーパー距離500m、病院距離1,030m クイーンズ伊勢丹小石川店(距離:638m) セブンイレブン文京小石川4丁目店(距離:925m) まいばすけっと小石川植物園前店(距離:486m) 肉のハナマサ小石川店(距離:682m) まいばすけっと春日2丁目店(距離:1,305m) コープ白山店(距離:1,116m) |
||
| 物件番号 | 29643 | 取引態様 | 仲介 |
| 情報更新日 | *** | ||
| 次回更新予定日 | 情報更新日より15日以内 | ||




















COMMENTS FROM STAFFアクサス白山【満室】の
担当者コメント
東京の1人暮らしはアセットナビへ!自社ブランドマンションをはじめ、賃貸物件を数多くご紹介可能です。こちらの物件は、当社グループ会社管理物件につき仲介手数料半額でご紹介中です。敷金礼金ゼロで初期費用が抑えられます。