ビバリーホームズ池袋【満室】 *** | 1K | ***
本情報は過去に掲載された物件の参考情報です。 最新の物件情報など詳細につきましてはお気軽にお問合せください。
| 賃料 | *** | 管理費・共益費 | *** |
|---|---|---|---|
| 敷金/礼金 | *** / *** | 専有面積 | 23.60m² |
| 間取り | 1K | 階建 | ***/7階建 |
ビバリーホームズ池袋【満室】の詳細
| 賃料 | *** | 管理費・共益費 | *** |
|---|---|---|---|
| 敷金/保証金 | *** / *** | 礼金/償却・敷引 | *** / *** |
| 更新料 | *** | フリーレント | *** |
| その他費用 | *** | ||
| 所在地 | 東京都豊島区西池袋3丁目 | ||
| 交通 |
東京地下鉄丸ノ内線「池袋」 徒歩9分 東京地下鉄有楽町線「要町」 徒歩8分 西武池袋・豊島線「椎名町」 徒歩9分 |
||
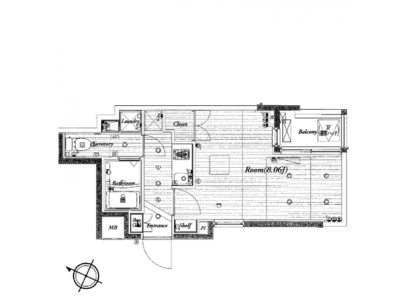
| 間取り | 1K | 間取り内訳 |
K 2 畳 洋室 8.6 畳 |
| 専有面積 | 23.60m² | バルコニー面積 | |
| 築年月(築年数) | 2013年05月(築12年) | 方位 | 北東 |
| 建物構造 | RC(鉄筋コンクリート) | 所在階/階建 | ***/7階建 |
| 総戸数 | 52戸 | 駐車場 | |
| 保険料 | *** | 契約期間 | *** |
| 引渡 | 相談 | ||
| 現況(予定年月) | 居住中 | ||
| 管理 | 管理人/巡回、 | ||
| 設備・条件 | BSアンテナ、CSアンテナ、CATV、オートロック、TVドアホン、防犯カメラ、ディンプルキー、宅配ボックス、エレベータ、角部屋、システムキッチン、バス・トイレ別、浴室乾燥機、室内洗濯機置き場、フローリング、エアコン、バルコニー、分譲賃貸 | ||
| 備考 | 保証人代行:必須/賃料総額の40%~ | ||
| 周辺施設 |
まいばすけっと 西池袋2丁目店(距離:257m) コモディイイダ池袋立教通り店(距離:375m) 東武ストア 西池袋店(距離:333m) ファミリーマート 西池袋四丁目店(距離:241m) セブンイレブン 西池袋3丁目店(距離:297m) セブンイレブン 西池袋4丁目店(距離:437m) |
||
| 物件番号 | 28954 | 取引態様 | 仲介 |
| 情報更新日 | *** | ||
| 次回更新予定日 | 情報更新日より15日以内 | ||




















COMMENTS FROM STAFFビバリーホームズ池袋【満室】の
担当者コメント
東京の1人暮らしはアセットナビへ!自社ブランドマンションをはじめ、賃貸物件を数多くご紹介可能です。こちらの物件は、分譲賃貸マンションで設備が充実しております。オートロックシステムでセキュリティもバッチリです。