メインステージ府中中河原駅前【満室】 *** | 1K | ***
本情報は過去に掲載された物件の参考情報です。 最新の物件情報など詳細につきましてはお気軽にお問合せください。
| 賃料 | *** | 管理費・共益費 | *** |
|---|---|---|---|
| 敷金/礼金 | *** / *** | 専有面積 | 25.38m² |
| 間取り | 1K | 階建 | ***/8階建 |
メインステージ府中中河原駅前【満室】の詳細
| 賃料 | *** | 管理費・共益費 | *** |
|---|---|---|---|
| 敷金/保証金 | *** / *** | 礼金/償却・敷引 | *** / *** |
| 更新料 | *** | フリーレント | *** |
| その他費用 | *** | ||
| 所在地 | 東京都府中市住吉町5丁目 | ||
| 交通 |
京王電鉄京王線「中河原」 徒歩3分 南武線「西府」 徒歩22分 京王電鉄京王線「聖蹟桜ヶ丘」 徒歩20分 |
||
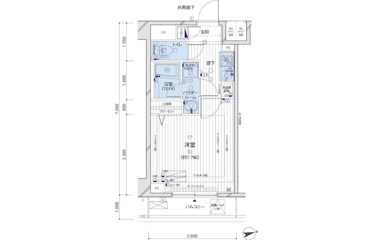
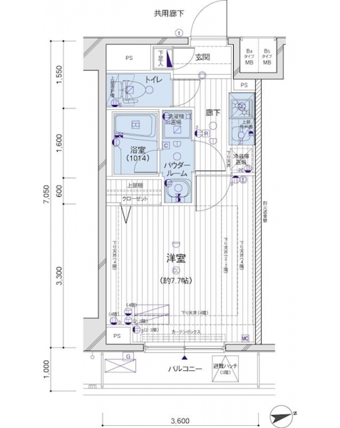
| 間取り | 1K | 間取り内訳 |
洋室 7.7 畳 |
| 専有面積 | 25.38m² | バルコニー面積 | |
| 築年月(築年数) | 2011年09月(築14年) | 方位 | 東 |
| 建物構造 | RC(鉄筋コンクリート) | 所在階/階建 | ***/8階建 |
| 総戸数 | 94戸 | 駐車場 | |
| 保険料 | *** | 契約期間 | *** |
| 引渡 | 2025年07月 | ||
| 現況(予定年月) | 賃貸中 | ||
| 管理 | 管理人/巡回、 | ||
| 設備・条件 | BSアンテナ、CSアンテナ、CATV、光ファイバー、オートロック、TVドアホン、防犯カメラ、ディンプルキー、宅配ボックス、エレベータ、2階以上、システムキッチン、バス・トイレ別、温水洗浄便座、浴室乾燥機、室内洗濯機置き場、フローリング、24時間換気システム、エアコン、バルコニー、分譲賃貸、礼金なし、敷金なし、ペット相談 | ||
| 備考 | 保証人代行:必須/家賃総額の50%~ | ||
| 周辺施設 |
ライフ 府中中河原店(距離:300m) 西友中河原店(距離:250m) ローソン 府中住吉町五丁目店(距離:155m) セブンイレブン 府中住吉4丁目店(距離:388m) サンドラッグ 中河原薬局(距離:162m) |
||
| 物件番号 | 61477 | 取引態様 | 仲介 |
| 情報更新日 | *** | ||
| 次回更新予定日 | 情報更新日より15日以内 | ||













COMMENTS FROM STAFFメインステージ府中中河原駅前【満室】の
担当者コメント
東京の1人暮らしはアセットナビへ!自社ブランドマンションをはじめ、賃貸物件を数多くご紹介可能です。こちらの物件は、分譲賃貸マンションで設備が充実しております。オートロックシステムでセキュリティもバッチリです。