本情報は過去に掲載された物件の参考情報です。 最新の物件情報など詳細につきましてはお気軽にお問合せください。
| 賃料 | *** | 管理費・共益費 | *** |
|---|---|---|---|
| 敷金/礼金 | *** / *** | 専有面積 | 26.02m² |
| 間取り | 1DK | 階建 | ***/4階建 |
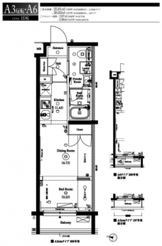
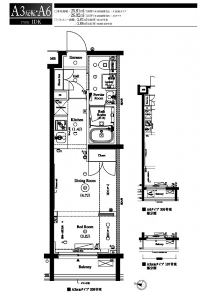
【間取り】間取図
【洗面所】洗面所
【キッチン】キッチン
【リビング】居室
【風呂】バス
【ベッドルーム】寝室
【玄関】玄関
【バルコニー・ベランダ】バルコニー
【トイレ】トイレ
【その他】内装
【その他設備】設備
【その他設備】セキュリティ
【その他】敷地内/建物
【キッチン】キッチン
【風呂】バス
【外観】グレーと白を基調とした外観。
【外観】シックなデザインで飽きの来ない外観。
【外観】4階建ての美麗マンション。
【外観】高級感溢れるモノトーンのデザイン。
【外観】閑静な住宅地に相応しい洗練されたデザイン。
【外観】緑が映える清潔感のある外観。
【外観】練馬区の中枢エリアに新たなライフステージ誕生。
【エントランス】建物の個性やクオリティー、更にはブランド力のあるエリアのステイタスに相応しいデザイン性をを象徴するのがエントランス。
【エントランス】風除室を抜けるとセキュリティ抜群なオートロックを設置。
【エントランスホール】白と黒を基調とした高級感溢れるエントランス。
【オートロック】共有部リーダーに非接触キーをかざすことで認証作業を行いますので、ストレス無くエントランスから共用部を通過。
【ロビー】シックなデザインで落ち着いた雰囲気を醸し出すロビー。
【エレベーター】乗り場にドットデジタルインジケーターと凸文字ボタンを採用し、だれにでも見やすく使いやすく追及した最新スタイルを採用。
【集合ポスト】メールコーナーに全戸分の集合郵便受を設置。
【駐輪場】33台(予定)分の自転車置き場有り。
【共用設備】一目でマンション名が分かるように設置。
【エントランスホール】壁面には色合いや質感に優れた高級感溢れる面材をふんだんに使用。
GoogleMapを読み込んでいます。
35.734233 139.652505
アクサス東京ウエスト練馬【満室】の物件動画
アクサス東京ウエスト練馬【満室】の詳細
| 賃料 | *** | 管理費・共益費 | *** |
|---|---|---|---|
| 敷金/保証金 | *** / *** | 礼金/償却・敷引 | *** / *** |
| 更新料 | *** | フリーレント | *** |
| その他費用 | *** | ||
| 所在地 | 東京都練馬区豊玉北6丁目 | ||
| 交通 |
都営大江戸線「練馬」 徒歩7分 西武池袋・豊島線「豊島園」 徒歩14分 西武池袋・豊島線「桜台(東京)」 徒歩17分 |
||
| 間取り | 1DK | 間取り内訳 |
K 1.4 畳 D 4.7 畳 洋室 3.2 畳 |
| 専有面積 | 26.02m² | バルコニー面積 | |
| 築年月(築年数) | 2019年09月(築6年) | 方位 | 西 |
| 建物構造 | RC(鉄筋コンクリート) | 所在階/階建 | ***/4階建 |
| 総戸数 | 38戸 | 駐車場 | 無 |
| 保険料 | *** | 契約期間 | *** |
| 引渡 | 2021年12月 | ||
| 現況(予定年月) | 居住中 | ||
| 管理 | 管理人/巡回、管理会社/株式会社アセットコミュニティ | ||
| 設備・条件 | AXAS(アクサス)シリーズ、インターネット対応、BSアンテナ、CSアンテナ、光ファイバー、オートロック、TVドアホン、防犯カメラ、24時間セキュリティ、ディンプルキー、ダブルロックキー、宅配ボックス、バイク置き場、駐輪場、エレベータ、デザイナーズ、閑静な住宅街、都市ガス、角部屋、システムキッチン、バス・トイレ別、温水洗浄便座、浴室乾燥機、フローリング、24時間換気システム、バルコニー、分譲賃貸、フリーレント、礼金なし、敷金なし、保証人不要、事務所不可、2人入居相談、2階以上、室内洗濯機置き場、エアコン、ペット対応、楽器不可 | ||
| 備考 | 保証人代行:必須/貸主負担。利用条件あり | ||
| 周辺施設 |
練馬区中村小学校1,000m、練馬区中村中学校1,100m、コンビニ距離130m、スーパー距離240m、病院距離1,500m スーパー:東武ストア練馬豊玉店433m、まいばすけっと練馬駅北口店932m コンビニ:ファミリーマート豊玉北六丁目店284m、セブンイレブン練馬豊玉中3丁目店301m、ファミリーマート練馬駅前店568m |
||
| 物件番号 | 20221 | 取引態様 | 専任媒介 |
| 情報更新日 | *** | ||
| 次回更新予定日 | 情報更新日より15日以内 | ||

















COMMENTS FROM STAFFアクサス東京ウエスト練馬【満室】の
担当者コメント
東京の1人暮らしはアセットナビへ!自社ブランドマンションをはじめ、賃貸物件を数多くご紹介可能です。こちらの物件は、敷金礼金ゼロで初期費用が抑えられます。