本情報は過去に掲載された物件の参考情報です。 最新の物件情報など詳細につきましてはお気軽にお問合せください。
| 賃料 | *** | 管理費・共益費 | *** |
|---|---|---|---|
| 敷金/礼金 | *** / *** | 専有面積 | 33.98m² |
| 間取り | 1DK | 階建 | ***/11階建 |
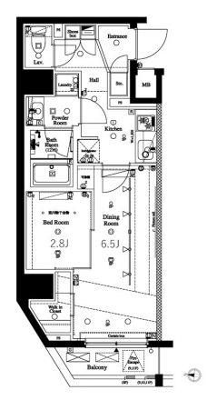
【間取り】間取図
【トイレ】トイレ
【キッチン】キッチン
【リビング】リビング
【風呂】バス
【ベッドルーム】寝室
【玄関】玄関
【バルコニー・ベランダ】バルコニー
【洗面所】洗面所
【その他設備】防水パン
【収納】WIC
【その他設備】セキュリティ
【その他設備】共用設備
【その他】その他
【リビング】居室
【外観】デザイナーズマンションならではの重厚感と高級感☆
【外観】安心安全のセキュリティーシステムが充実☆分譲マンションの持ち味をしっかりと出した高級感溢れるファザード☆
【外観】街並みに調和するシックな色調でありながら新鮮で都会的な印象を与える洗練されたデザイン性がステイタスのあるライフステージを創出します。
【外観】モダンでスタイリッシュ、そして知的なファサード。
【外観】白と黒を基調としたモノトーンな色合いは高級感と落ちつきを兼ね備えたファザードとなっております☆
【エントランス ロビー】エレガントな雰囲気に包まれたエントランスホール。
【集合ポスト】各お部屋に専用のポストが設けられております☆ダイヤル式でしっかりとロックが可能です☆
【オートロック盤】エントランスの集合玄関機のカメラにより訪問者を映像で確認出来ます。その他にも解錠表示機能等で居住者の安全と安心を確保します。
【エレベーター】各階への移動をスムーズに行えるエレベーターは防犯モニターも設置されているため、セキュリティー面もしっかりと考慮しております☆
【宅配ボックス】居住者は操作も簡単で24時間いつでも好きな時に、宅配業者を待つことなく、忙しいときやお出かけするときに宅配物を受け取ることが出来ます。
【エントランス】建物の個性やクオリティー、さらにはブランド力のあるエリアのステイタスにふさわしいデザイン性をも象徴するのがエントランス。
【オートロック盤】エントランスの集合玄関機のカメラにより訪問者を映像で確認出来ます。その他にも解錠表示機能等で居住者の安全と安心を確保します。
【宅配ボックス】居住者は操作も簡単で24時間いつでも好きな時に、宅配業者を待つことなく、忙しいときやお出かけするときに宅配物を受け取ることが出来ます。
【集合ポスト】各住戸に専用のポストを設けました☆
【エントランス】内外部の壁面には色合いや質感に優れた高級感あふれる面材をふんだんに使用、プライベートエリアへのプロローグを上品に、そしてドラマティックに演出します。
【エントランスホール】エレガントな雰囲気に包まれたエントランスホール。
【エントランスホール】ホテルライクな内装はデザイン性と機能性の両方をあわせ持ち、新生活を華やかに彩ります☆
【エントランスホール】モノトーンで落ちつきのある色合い☆
【駐輪場】32台分(予定)の自転車置き場を設けました☆ショッピングやお出かけに大変便利です☆
【防犯カメラ】居住者の安全を守るため、監視カメラをエレベーター内、エントランス、自転車置き場、避難通路など様々な場所に設置しています。トラブルの発生を未然に抑止し、心理的な効果にもつながり、高い安全性を確保します。
GoogleMapを読み込んでいます。
35.679970 139.689053
アクサス渋谷初台【満室】の物件動画
アクサス渋谷初台【満室】の詳細
| 賃料 | *** | 管理費・共益費 | *** |
|---|---|---|---|
| 敷金/保証金 | *** / *** | 礼金/償却・敷引 | *** / *** |
| 更新料 | *** | フリーレント | *** |
| その他費用 | *** | ||
| 所在地 | 東京都渋谷区代々木4丁目 | ||
| 交通 |
京王電鉄京王線「初台」 徒歩4分 小田急電鉄小田原線「参宮橋」 徒歩8分 山手線「代々木」 徒歩17分 |
||
| 間取り | 1DK | 間取り内訳 |
DK 6.5 畳 洋室 2.8 畳 |
| 専有面積 | 33.98m² | バルコニー面積 | |
| 築年月(築年数) | 2019年09月(築6年) | 方位 | 西 |
| 建物構造 | RC(鉄筋コンクリート) | 所在階/階建 | ***/11階建 |
| 総戸数 | 33戸 | 駐車場 | 無 |
| 保険料 | *** | 契約期間 | *** |
| 引渡 | 2022年11月 | ||
| 現況(予定年月) | 賃貸中 | ||
| 管理 | 管理人/巡回、管理会社/株式会社アセットコミュニティ | ||
| 設備・条件 | AXAS(アクサス)シリーズ、インターネット対応、BSアンテナ、CSアンテナ、光ファイバー、オートロック、TVドアホン、防犯カメラ、24時間セキュリティ、ディンプルキー、ダブルロックキー、宅配ボックス、バイク置き場、駐輪場、エレベータ、デザイナーズ、都市ガス、角部屋、システムキッチン、バス・トイレ別、温水洗浄便座、浴室乾燥機、フローリング、24時間換気システム、バルコニー、分譲賃貸、礼金なし、敷金なし、保証人不要、事務所不可、2人入居相談、2階以上、室内洗濯機置き場、エアコン、ペット対応、楽器不可 | ||
| 備考 | 保証人代行:必須/エポス、クレディセゾン、新日本信用保証、全保連、ルームバンクインシュア 家賃総額の30%~ | ||
| 周辺施設 |
渋谷区立代々木山谷小学校650m、渋谷区立代々木中学校1,100m、コンビニ距離383m、スーパー距離432m、病院距離1,500m スーパー:成城石井オペラシティ店432m、マルエツプチ西新宿三丁目店702m、オーケー初台店820m、Venga Vengaダイヤ店1003m、miniピアゴ代々木1丁目店893m コンビニ:ローソン渋谷初台一丁目店383m、ローソン代々木西参道店525m その他:くすりセイジョー初台店216m、餃子の王将初台店217m、東京オペラシティ郵便局500m、Can★Do初台店236m 病院:医療法人温光会内藤病院332m |
||
| 物件番号 | 30129 | 取引態様 | 専任媒介 |
| 情報更新日 | *** | ||
| 次回更新予定日 | 情報更新日より15日以内 | ||


















COMMENTS FROM STAFFアクサス渋谷初台【満室】の
担当者コメント
東京の1人暮らしはアセットナビへ!自社ブランドマンションをはじめ、賃貸物件を数多くご紹介可能です。こちらの物件は、当社管理物件につき仲介手数料半額でご紹介中です。敷金ゼロで初期費用が抑えられます。