本情報は過去に掲載された物件の参考情報です。 最新の物件情報など詳細につきましてはお気軽にお問合せください。
| 賃料 | *** | 管理費・共益費 | *** |
|---|---|---|---|
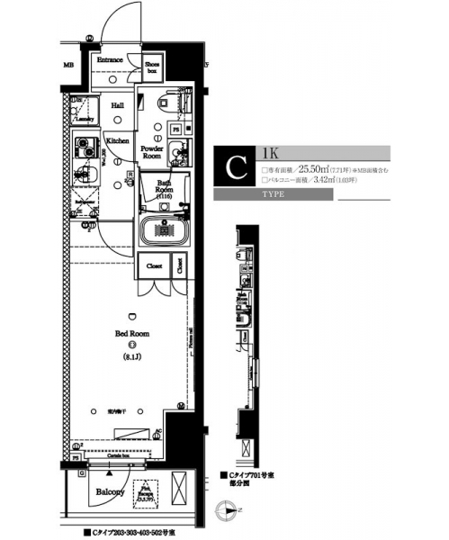
| 敷金/礼金 | *** / *** | 専有面積 | 25.50m² |
| 間取り | 1K | 階建 | ***/8階建 |
【間取り】間取図
【トイレ】トイレ
【キッチン】
【リビング】
【風呂】
【ベッドルーム】
【玄関】
【収納】
【洗面所】洗面所
【その他設備】設備
【その他】
【その他】その他
【その他】敷地内/建物
【外観】街並みに調和するシックな色調でありながら新鮮で都会的な印象を与える洗練されたデザイン性がステイタスのあるライフステージを創出します。
【外観】モダンでスタイリッシュ、そして知的なファサード。
【外観】街並みに調和するシックな色調でありながら新鮮で都会的な印象を与える洗練されたデザイン性がステイタスのあるライフステージを創出します。
【外観】モダンでスタイリッシュ、そして知的なファサード。
【外観】建物の個性やクオリティー、さらにはブランド力のあるエリアのステイタスにふさわしいデザイン性をも象徴するのがエントランス。
【エントランス】建物の個性やクオリティー、さらにはブランド力のあるエリアのステイタスにふさわしいデザイン性をも象徴するのがエントランス。
【エントランス】内外部の壁面には色合いや質感に優れた高級感あふれる面材をふんだんに使用、プライベートエリアへのプロローグを上品に、そしてドラマティックに演出します。
【エントランス】エレガントな雰囲気に包まれたエントランスホール。
【メールボックス&宅配ボックス】個人の郵便物を受け取るためのメールボックス。不在時に届いた宅配便を本人の代わりに受け取り、24時間いつでも取り出せる宅配ボックス。2つの住宅設備を一体化させ、美しいデザインを実現させました。非接触キー対応なので、帰宅時に手荷物がある時も便利に利用できます。
【駐輪場】34台分の自転車置き場を設けました。ショッピングや近隣へのお出かけなどに便利です。 ※一部高さ制限があり。
【駐車場】車を利用されるご入居者のために○台分の駐車場を設けております。
【バイク置き場】バイクを利用するご入居者のために○台分のバイク置き場を設けました。
【防犯カメラ】居住者の安全を守るため、監視カメラをエレベーター内、エントランス、自転車置き場、避難通路など様々な場所に設置しています。トラブルの発生を未然に抑止し、心理的な効果にもつながり、高い安全性を確保します。
【エレベーター】地震を感知して最寄り階に停止する安全装置を装備したエレベーター。
GoogleMapを読み込んでいます。
35.714873 139.653603
アクサス中野大和町【満室】の物件動画
アクサス中野大和町【満室】の詳細
| 賃料 | *** | 管理費・共益費 | *** |
|---|---|---|---|
| 敷金/保証金 | *** / *** | 礼金/償却・敷引 | *** / *** |
| 更新料 | *** | フリーレント | *** |
| その他費用 | *** | ||
| 所在地 | 東京都中野区大和町2丁目 | ||
| 交通 |
西武鉄道新宿線「野方」 徒歩8分 総武・中央緩行線「高円寺」 徒歩16分 総武・中央緩行線「中野(東京)」 徒歩24分 |
||
| 間取り | 1K | 間取り内訳 |
K 2 畳 洋室 8.1 畳 |
| 専有面積 | 25.50m² | バルコニー面積 | |
| 築年月(築年数) | 2017年02月(築8年) | 方位 | 東 |
| 建物構造 | RC(鉄筋コンクリート) | 所在階/階建 | ***/8階建 |
| 総戸数 | 35戸 | 駐車場 | |
| 保険料 | *** | 契約期間 | *** |
| 引渡 | 即時 | ||
| 現況(予定年月) | 空室 | ||
| 管理 | 管理人/巡回、 | ||
| 設備・条件 | BSアンテナ、CSアンテナ、光ファイバー、オートロック、TVドアホン、防犯カメラ、ディンプルキー、ダブルロックキー、宅配ボックス、バイク置き場、駐輪場、エレベータ、AXAS(アクサス)シリーズ、2階以上、システムキッチン、バス・トイレ別、温水洗浄便座、浴室乾燥機、室内洗濯機置き場、フローリング、24時間換気システム、エアコン、バルコニー、分譲賃貸 | ||
| 備考 | 保証人代行:必須/エポス、クレディセゾン、新日本信用保証、全保連、ルームバンクインシュア 家賃総額の30%~ | ||
| 周辺施設 |
中野区立啓明小学校200m、中野区立第八中学校2,300m、コンビニ距離800m、スーパー距離550m、病院距離2,900m MARUSHO野方南口店(距離:439m) まいばすけっと高円寺大和陸橋店(距離:602m) セブンイレブン中野野方2丁目店(距離:721m) ファミリーマート中野大和町四丁目店(距離:702m) まいばすけっと高円寺大和陸橋店(距離:602m) マルエツプチ大和町店(距離:690m) |
||
| 物件番号 | 17562 | 取引態様 | 専任媒介 |
| 情報更新日 | *** | ||
| 次回更新予定日 | 情報更新日より15日以内 | ||




















COMMENTS FROM STAFFアクサス中野大和町【満室】の
担当者コメント
東京の1人暮らしはアセットナビへ!自社ブランドマンションをはじめ、賃貸物件を数多くご紹介可能です。当社管理物件ご成約で湯治スパ・TOJI TOKYO無料体験ペアチケットをプレゼント。※お一人様につき1回のみとなります。※キャンペーン期間は12月1日~3月31日です。