ユナイテッドグロー高田馬場【満室】 *** | 1K | ***
本情報は過去に掲載された物件の参考情報です。 最新の物件情報など詳細につきましてはお気軽にお問合せください。
| 賃料 | *** | 管理費・共益費 | *** |
|---|---|---|---|
| 敷金/礼金 | *** / *** | 専有面積 | 22.27m² |
| 間取り | 1K | 階建 | ***/5階建 |
ユナイテッドグロー高田馬場【満室】の詳細
| 賃料 | *** | 管理費・共益費 | *** |
|---|---|---|---|
| 敷金/保証金 | *** / *** | 礼金/償却・敷引 | *** / *** |
| 更新料 | *** | フリーレント | *** |
| その他費用 | *** | ||
| 所在地 | 東京都新宿区高田馬場4丁目 | ||
| 交通 |
山手線「高田馬場」 徒歩9分 総武・中央緩行線「大久保(東京)」 徒歩10分 西武鉄道新宿線「下落合」 徒歩13分 |
||
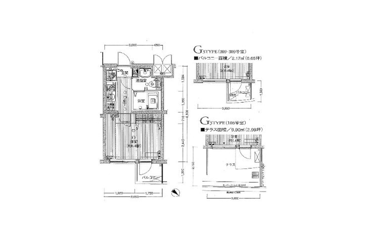
| 間取り | 1K | 間取り内訳 |
洋室 6.4 畳 K 2 畳 |
| 専有面積 | 22.27m² | バルコニー面積 | 2.17m² |
| 築年月(築年数) | 2005年03月(築20年) | 方位 | 北東 |
| 建物構造 | RC(鉄筋コンクリート) | 所在階/階建 | ***/5階建 |
| 総戸数 | 37戸 | 駐車場 | |
| 保険料 | *** | 契約期間 | *** |
| 引渡 | 2025年04月 | ||
| 現況(予定年月) | 賃貸中 | ||
| 管理 | 管理人/巡回、 | ||
| 設備・条件 | BSアンテナ、CSアンテナ、オートロック、TVドアホン、防犯カメラ、駐輪場、エレベータ、デザイナーズ、2階以上、バス・トイレ別、室内洗濯機置き場、24時間換気システム、エアコン、バルコニー、分譲賃貸、敷金なし、ペット不可 | ||
| 備考 | 保証人代行:必須/総賃料の50%~ | ||
| 周辺施設 |
セブンイレブン 高田馬場店(距離:45m) セブンイレブン 高田馬場小滝橋店(距離:291m) ローソンストア100 LS新宿百人町四丁目店(距離:391m) maruetsu(マルエツ) プチ 高田馬場店(距離:509m) Welpark(ウェルパーク) 調剤薬局新宿小滝橋店(距離:499m) |
||
| 物件番号 | 28336 | 取引態様 | 仲介 |
| 情報更新日 | *** | ||
| 次回更新予定日 | 情報更新日より15日以内 | ||




















COMMENTS FROM STAFFユナイテッドグロー高田馬場【満室】の
担当者コメント
東京の1人暮らしはアセットナビへ!自社ブランドマンションをはじめ、賃貸物件を数多くご紹介可能です。こちらの物件は、分譲賃貸マンションで設備が充実しております。オートロックシステムでセキュリティもバッチリです。