メインステージ大手町【満室】 *** | 1K | ***
本情報は過去に掲載された物件の参考情報です。 最新の物件情報など詳細につきましてはお気軽にお問合せください。
| 賃料 | *** | 管理費・共益費 | *** |
|---|---|---|---|
| 敷金/礼金 | *** / *** | 専有面積 | 24.32m² |
| 間取り | 1K | 階建 | ***/14階建 |
メインステージ大手町【満室】の詳細
| 賃料 | *** | 管理費・共益費 | *** |
|---|---|---|---|
| 敷金/保証金 | *** / *** | 礼金/償却・敷引 | *** / *** |
| 更新料 | *** | フリーレント | *** |
| その他費用 | *** | ||
| 所在地 | 東京都千代田区内神田2丁目 | ||
| 交通 |
山手線「神田(東京)」 徒歩3分 東京地下鉄丸ノ内線「大手町(東京)」 徒歩5分 東京地下鉄銀座線「三越前」 徒歩9分 |
||
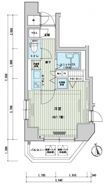
| 間取り | 1K | 間取り内訳 |
洋室 7.7 畳 洋室 7.7 畳 |
| 専有面積 | 24.32m² | バルコニー面積 | |
| 築年月(築年数) | 2005年09月(築20年) | 方位 | 南 |
| 建物構造 | RC(鉄筋コンクリート) | 所在階/階建 | ***/14階建 |
| 総戸数 | 40戸 | 駐車場 | 無 |
| 保険料 | *** | 契約期間 | *** |
| 引渡 | 即時 | ||
| 現況(予定年月) | 空室 | ||
| 管理 | 管理人/巡回、 | ||
| 設備・条件 | BSアンテナ、CSアンテナ、オートロック、TVドアホン、防犯カメラ、宅配ボックス、エレベータ、2階以上、角部屋、システムキッチン、バス・トイレ別、温水洗浄便座、浴室乾燥機、室内洗濯機置き場、フローリング、24時間換気システム、エアコン、バルコニー、分譲賃貸、日当たり良好、敷金なし、ペット不可 | ||
| 備考 | 保証人代行:必須/賃料総額の50%~ | ||
| 周辺施設 |
肉のハナマサ神田店(距離:177m) まいばすけっと神田駅西店(距離:418m) 業務スーパー神田店(距離:541m) ローソン内神田三丁目店(距離:198m) サンクス神田多町店(距離:560m) |
||
| 物件番号 | 34938 | 取引態様 | 仲介 |
| 情報更新日 | *** | ||
| 次回更新予定日 | 情報更新日より15日以内 | ||


















COMMENTS FROM STAFFメインステージ大手町【満室】の
担当者コメント
東京の1人暮らしはアセットナビへ!自社ブランドマンションをはじめ、賃貸物件を数多くご紹介可能です。3,000円キャッシュバックキャンペーン実施中。オンライン接客のお客様にAmazonギフト券3,000円分をプレゼント。詳しくはスタッフまでお問い合わせください。