ルーブル世田谷【満室】 *** | 1K | ***
本情報は過去に掲載された物件の参考情報です。 最新の物件情報など詳細につきましてはお気軽にお問合せください。
| 賃料 | *** | 管理費・共益費 | *** |
|---|---|---|---|
| 敷金/礼金 | *** / *** | 専有面積 | 19.17m² |
| 間取り | 1K | 階建 | ***/7階建 |
ルーブル世田谷【満室】の詳細
| 賃料 | *** | 管理費・共益費 | *** |
|---|---|---|---|
| 敷金/保証金 | *** / *** | 礼金/償却・敷引 | *** / *** |
| 更新料 | *** | フリーレント | *** |
| その他費用 | *** | ||
| 所在地 | 東京都世田谷区世田谷3丁目 | ||
| 交通 |
東急世田谷線「上町」 徒歩2分 東急世田谷線「世田谷」 徒歩5分 東急世田谷線「宮の坂」 徒歩7分 |
||
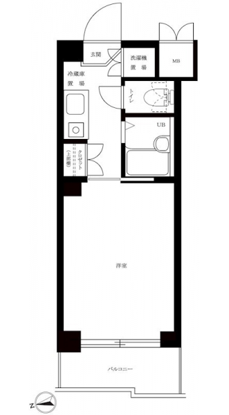
| 間取り | 1K | 間取り内訳 |
洋室 6 畳 7 階 K 1.5 畳 7 階 |
| 専有面積 | 19.17m² | バルコニー面積 | |
| 築年月(築年数) | 1999年06月(築26年) | 方位 | 西 |
| 建物構造 | RC(鉄筋コンクリート) | 所在階/階建 | ***/7階建 |
| 総戸数 | 57戸 | 駐車場 | 無 |
| 保険料 | *** | 契約期間 | *** |
| 引渡 | 2023年11月 | ||
| 現況(予定年月) | 空室 | ||
| 管理 | 管理人/巡回、管理会社/(株)TFDコミュニティ | ||
| 設備・条件 | BSアンテナ、光ファイバー、オートロック、防犯カメラ、ディンプルキー、宅配ボックス、駐輪場、エレベータ、最上階、システムキッチン、バス・トイレ別、室内洗濯機置き場、フローリング、エアコン、バルコニー、分譲賃貸、敷金なし | ||
| 備考 | 保証人代行:必須/初回保証料30%(家賃+管理費)※学生初回保証料9,000円 ※外国籍の方は50%+¥2000 | ||
| 周辺施設 |
ローソン 世田谷三丁目店(距離:175m) セブンイレブン 世田谷桜小前店(距離:509m) オオゼキ 上町店(距離:312m) まいばすけっと 世田谷1丁目店(距離:546m) ココカラファイン 上町駅前店(距離:213m) |
||
| 物件番号 | 42698 | 取引態様 | 仲介 |
| 情報更新日 | *** | ||
| 次回更新予定日 | 情報更新日より15日以内 | ||





















COMMENTS FROM STAFFルーブル世田谷【満室】の
担当者コメント
東京の1人暮らしはアセットナビへ!自社ブランドマンションをはじめ、賃貸物件を数多くご紹介可能です。来店キャンペーン実施中!ご来店のお客様・先着30名にハーゲンダッツギフト券をプレゼント。詳しくはスタッフまでお問い合わせください。