プレール・ドゥーク東京CANAL【満室】 *** | 1K | ***
本情報は過去に掲載された物件の参考情報です。 最新の物件情報など詳細につきましてはお気軽にお問合せください。
| 賃料 | *** | 管理費・共益費 | *** |
|---|---|---|---|
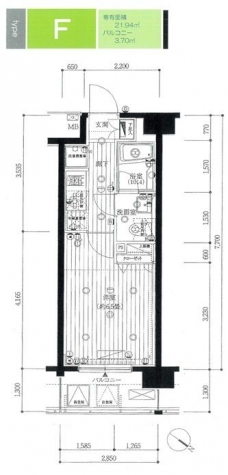
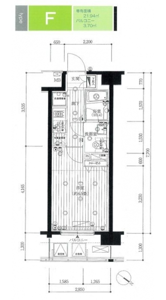
| 敷金/礼金 | *** / *** | 専有面積 | 21.94m² |
| 間取り | 1K | 階建 | ***/9階建 |
プレール・ドゥーク東京CANAL【満室】の詳細
| 賃料 | *** | 管理費・共益費 | *** |
|---|---|---|---|
| 敷金/保証金 | *** / *** | 礼金/償却・敷引 | *** / *** |
| 更新料 | *** | フリーレント | *** |
| その他費用 | *** | ||
| 所在地 | 東京都江東区枝川3丁目 | ||
| 交通 |
京葉線「潮見」 徒歩7分 東京地下鉄有楽町線「豊洲」 徒歩22分 東京地下鉄東西線「東陽町」 徒歩27分 |
||
| 間取り | 1K | 間取り内訳 |
洋室 6.5 畳 |
| 専有面積 | 21.94m² | バルコニー面積 | |
| 築年月(築年数) | 2006年06月(築19年) | 方位 | 北東 |
| 建物構造 | RC(鉄筋コンクリート) | 所在階/階建 | ***/9階建 |
| 総戸数 | 97戸 | 駐車場 | |
| 保険料 | *** | 契約期間 | *** |
| 引渡 | 相談 | ||
| 現況(予定年月) | 居住中 | ||
| 管理 | |||
| 設備・条件 | オートロック、TVドアホン、防犯カメラ、宅配ボックス、駐輪場、エレベータ、2階以上、システムキッチン、バス・トイレ別、温水洗浄便座、浴室乾燥機、室内洗濯機置き場、洗濯機置き場有、フローリング、エアコン、バルコニー、分譲賃貸、礼金なし、敷金なし | ||
| 備考 | 保証人代行:必須/賃料総額50%~、月額賃料総額の1.1% | ||
| 周辺施設 |
マルエツ潮見店(距離:598m) ホームセンタースーパービバホーム豊洲店(距離:1,740m) まいばすけっと東陽1丁目店(距離:1,374m) アブアブ赤札堂東陽町店(距離:1,925m) セブンイレブン牡丹店(距離:2,148m) |
||
| 物件番号 | 61462 | 取引態様 | 仲介 |
| 情報更新日 | *** | ||
| 次回更新予定日 | 情報更新日より15日以内 | ||



















COMMENTS FROM STAFFプレール・ドゥーク東京CANAL【満室】の
担当者コメント
東京の1人暮らしはアセットナビへ!自社ブランドマンションをはじめ、賃貸物件を数多くご紹介可能です。こちらの物件は、分譲賃貸マンションで設備が充実しております。オートロックシステムでセキュリティもバッチリです。