メインステージ青山【満室】 *** | 1K | ***
本情報は過去に掲載された物件の参考情報です。 最新の物件情報など詳細につきましてはお気軽にお問合せください。
| 賃料 | *** | 管理費・共益費 | *** |
|---|---|---|---|
| 敷金/礼金 | *** / *** | 専有面積 | 20.14m² |
| 間取り | 1K | 階建 | ***/6階建 |
メインステージ青山【満室】の詳細
| 賃料 | *** | 管理費・共益費 | *** |
|---|---|---|---|
| 敷金/保証金 | *** / *** | 礼金/償却・敷引 | *** / *** |
| 更新料 | *** | フリーレント | *** |
| その他費用 | *** | ||
| 所在地 | 東京都渋谷区渋谷2丁目 | ||
| 交通 |
山手線「渋谷」 徒歩11分 東京地下鉄千代田線「表参道」 徒歩10分 東急東横線「代官山」 徒歩20分 |
||
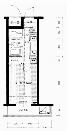
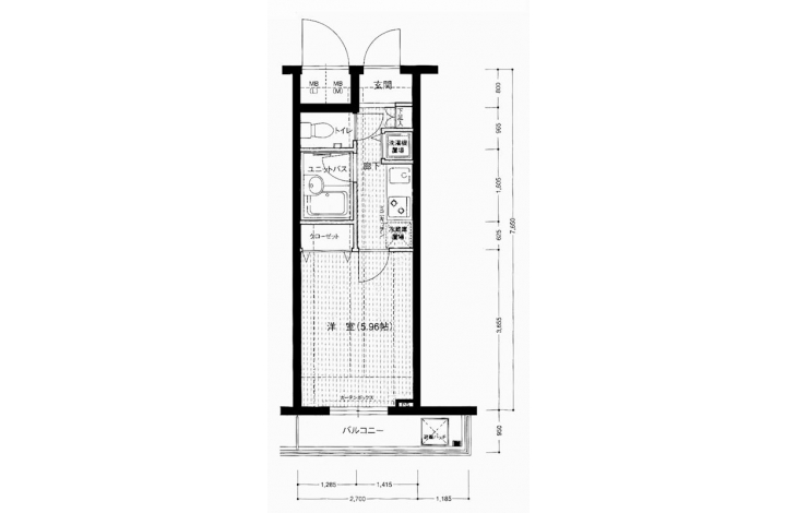
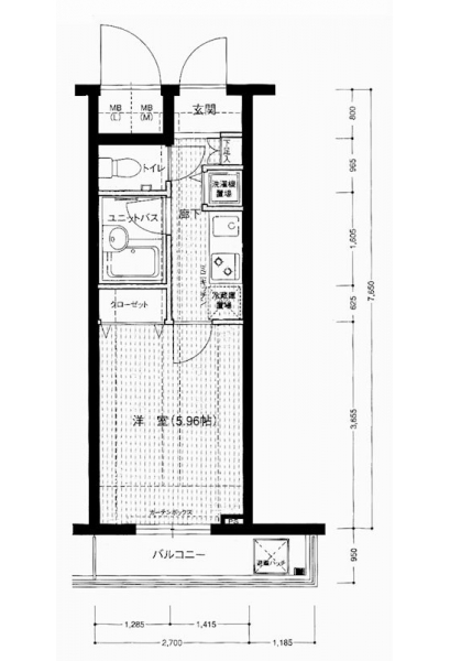
| 間取り | 1K | 間取り内訳 |
K 2 畳 洋室 6 畳 |
| 専有面積 | 20.14m² | バルコニー面積 | 3.58m² |
| 築年月(築年数) | 2001年08月(築24年) | 方位 | 南西 |
| 建物構造 | RC(鉄筋コンクリート) | 所在階/階建 | ***/6階建 |
| 総戸数 | 38戸 | 駐車場 | 無 |
| 保険料 | *** | 契約期間 | *** |
| 引渡 | 即時 | ||
| 現況(予定年月) | 空室 | ||
| 管理 | 管理人/巡回、 | ||
| 設備・条件 | 光ファイバー、オートロック、宅配ボックス、駐輪場、エレベータ、デザイナーズ、システムキッチン、バス・トイレ別、室内洗濯機置き場、フローリング、エアコン、バルコニー、分譲賃貸、日当たり良好 | ||
| 備考 | 保証人代行:必須/エポスカード、家賃総額の50%、月額:家賃総額の1.5% | ||
| 周辺施設 |
ライフ渋谷東店(距離:791m) ローソン渋谷二丁目店(距離:74m) ローソン渋谷東一丁目店(距離:394m) Bio c’ Bon(ビオセボン) 骨董通り店(距離:679m) マツモトキヨシ 青山店(距離:572m) |
||
| 物件番号 | 16719 | 取引態様 | 代理 |
| 情報更新日 | *** | ||
| 次回更新予定日 | 情報更新日より15日以内 | ||

















COMMENTS FROM STAFFメインステージ青山【満室】の
担当者コメント
東京の1人暮らしはアセットナビへ!自社ブランドマンションをはじめ、賃貸物件を数多くご紹介可能です。こちらの物件は、分譲賃貸マンションで設備が充実しております。オートロックシステムでセキュリティもバッチリです。