メインステージ木場【満室】 *** | 1K | ***
本情報は過去に掲載された物件の参考情報です。 最新の物件情報など詳細につきましてはお気軽にお問合せください。
| 賃料 | *** | 管理費・共益費 | *** |
|---|---|---|---|
| 敷金/礼金 | *** / *** | 専有面積 | 25.80m² |
| 間取り | 1K | 階建 | ***/12階建 |
メインステージ木場【満室】の詳細
| 賃料 | *** | 管理費・共益費 | *** |
|---|---|---|---|
| 敷金/保証金 | *** / *** | 礼金/償却・敷引 | *** / *** |
| 更新料 | *** | フリーレント | *** |
| その他費用 | *** | ||
| 所在地 | 東京都江東区木場2丁目 | ||
| 交通 |
東京地下鉄東西線「木場」 徒歩3分 東京地下鉄東西線「門前仲町」 徒歩8分 京葉線「越中島」 徒歩18分 東京地下鉄東西線 東陽町 徒歩19分 |
||
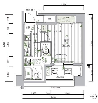
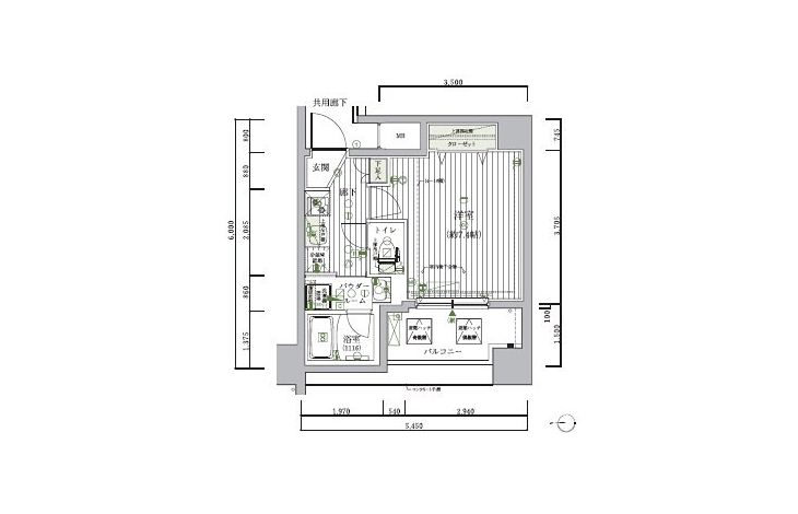
| 間取り | 1K | 間取り内訳 |
洋室 7.4 畳 洋室 7.8 畳 |
| 専有面積 | 25.80m² | バルコニー面積 | |
| 築年月(築年数) | 2019年07月(築6年) | 方位 | 西 |
| 建物構造 | RC(鉄筋コンクリート) | 所在階/階建 | ***/12階建 |
| 総戸数 | 50戸 | 駐車場 | 無 |
| 保険料 | *** | 契約期間 | *** |
| 引渡 | 即時 | ||
| 現況(予定年月) | 空室 | ||
| 管理 | |||
| 設備・条件 | BSアンテナ、CSアンテナ、光ファイバー、オートロック、TVドアホン、防犯カメラ、ディンプルキー、ダブルロックキー、宅配ボックス、エレベータ、2階以上、システムキッチン、バス・トイレ別、温水洗浄便座、浴室乾燥機、室内洗濯機置き場、フローリング、エアコン、バルコニー、分譲賃貸、礼金なし、敷金なし、ペット相談 | ||
| 備考 | 保証人代行:必須/管理会社指定:賃料+管理費の50%~ | ||
| 周辺施設 |
まいばすけっと江東富岡1丁目店(距離:279m) まいばすけっと富岡八幡店(距離:398m) ファミリーマート木場二丁目店(距離:261m) セブンイレブン牡丹店(距離:393m) セブンイレブン江東門前仲町店(距離:880m) スギ薬局江東富岡店(距離:503m) |
||
| 物件番号 | 44080 | 取引態様 | 仲介 |
| 情報更新日 | *** | ||
| 次回更新予定日 | 情報更新日より15日以内 | ||




















COMMENTS FROM STAFFメインステージ木場【満室】の
担当者コメント
東京の1人暮らしはアセットナビへ!自社ブランドマンションをはじめ、賃貸物件を数多くご紹介可能です。こちらの物件は、分譲賃貸マンションで設備が充実しております。オートロックシステムでセキュリティもバッチリです。