メインステージ板橋EAST【満室】 *** | 1K | ***
本情報は過去に掲載された物件の参考情報です。 最新の物件情報など詳細につきましてはお気軽にお問合せください。
| 賃料 | *** | 管理費・共益費 | *** |
|---|---|---|---|
| 敷金/礼金 | *** / *** | 専有面積 | 25.66m² |
| 間取り | 1K | 階建 | ***/8階建 |
メインステージ板橋EAST【満室】の詳細
| 賃料 | *** | 管理費・共益費 | *** |
|---|---|---|---|
| 敷金/保証金 | *** / *** | 礼金/償却・敷引 | *** / *** |
| 更新料 | *** | フリーレント | *** |
| その他費用 | *** | ||
| 所在地 | 東京都豊島区上池袋4丁目 | ||
| 交通 |
埼京線「板橋」 徒歩3分 都営三田線「新板橋」 徒歩9分 東武鉄道東上線「北池袋」 徒歩7分 |
||
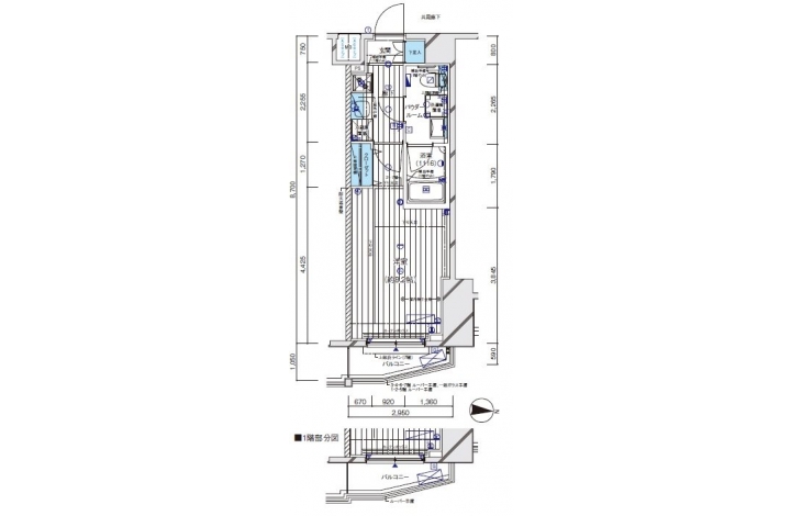
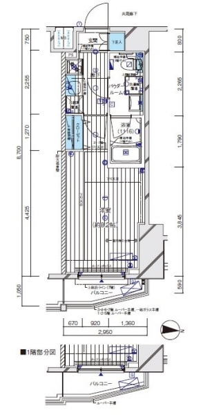
| 間取り | 1K | 間取り内訳 |
洋室 8.2 畳 6 階 |
| 専有面積 | 25.66m² | バルコニー面積 | 2.64m² |
| 築年月(築年数) | 2019年07月(築6年) | 方位 | 東 |
| 建物構造 | RC(鉄筋コンクリート) | 所在階/階建 | ***/8階建 |
| 総戸数 | 64戸 | 駐車場 | |
| 保険料 | *** | 契約期間 | *** |
| 引渡 | 即時 | ||
| 現況(予定年月) | 空室 | ||
| 管理 | 管理人/巡回、管理会社/株式会社青山ハウジングサポート(03-5281-4914) | ||
| 設備・条件 | BSアンテナ、CSアンテナ、CATV、オートロック、TVドアホン、防犯カメラ、ディンプルキー、ダブルロックキー、宅配ボックス、バイク置き場、駐輪場、エレベータ、2階以上、システムキッチン、バス・トイレ別、温水洗浄便座、浴室乾燥機、室内洗濯機置き場、洗濯機置き場有、フローリング、24時間換気システム、エアコン、バルコニー、分譲賃貸 | ||
| 備考 | 保証人代行:必須/50%~ | ||
| 周辺施設 | まいばすけっと 板橋駅南店(距離:207m) | ||
| 物件番号 | 16532 | 取引態様 | 代理 |
| 情報更新日 | *** | ||
| 次回更新予定日 | 情報更新日より15日以内 | ||





















COMMENTS FROM STAFFメインステージ板橋EAST【満室】の
担当者コメント
ペット飼育可能ネット込(シーファイブ)