メインステージ荻窪【満室】 *** | 1K | ***
本情報は過去に掲載された物件の参考情報です。 最新の物件情報など詳細につきましてはお気軽にお問合せください。
| 賃料 | *** | 管理費・共益費 | *** |
|---|---|---|---|
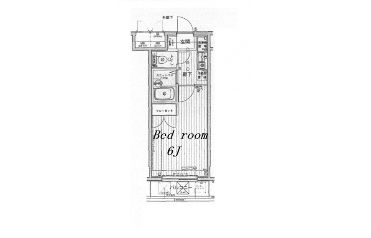
| 敷金/礼金 | *** / *** | 専有面積 | 20.88m² |
| 間取り | 1K | 階建 | ***/8階建 |
メインステージ荻窪【満室】の詳細
| 賃料 | *** | 管理費・共益費 | *** |
|---|---|---|---|
| 敷金/保証金 | *** / *** | 礼金/償却・敷引 | *** / *** |
| 更新料 | *** | フリーレント | *** |
| その他費用 | *** | ||
| 所在地 | 東京都杉並区荻窪2丁目 | ||
| 交通 |
総武・中央緩行線「荻窪」 徒歩13分 京王電鉄井の頭線「高井戸」 徒歩18分 京王電鉄井の頭線「富士見ヶ丘」 徒歩26分 |
||
| 間取り | 1K | 間取り内訳 | |
| 専有面積 | 20.88m² | バルコニー面積 | |
| 築年月(築年数) | 2000年12月(築25年) | 方位 | 西 |
| 建物構造 | RC(鉄筋コンクリート) | 所在階/階建 | ***/8階建 |
| 総戸数 | 駐車場 | ||
| 保険料 | *** | 契約期間 | *** |
| 引渡 | 2025年01月 | ||
| 現況(予定年月) | 空室 | ||
| 管理 | |||
| 設備・条件 | BSアンテナ、オートロック、宅配ボックス、エレベータ、デザイナーズ、2階以上、システムキッチン、バス・トイレ別、室内洗濯機置き場、フローリング、エアコン、バルコニー、分譲賃貸、敷金なし、ペット不可 | ||
| 備考 | 保証人代行:必須/クレディセゾン、家賃総額の50%~ | ||
| 周辺施設 |
西友 高井戸東店(距離:358m) なみきストアー(距離:634m) ファミリーマート 杉並宮前二丁目店(距離:393m) セブンイレブン 荻窪桃二小南店(距離:568m) ココカラファイン 荻窪南店(距離:1,175m) |
||
| 物件番号 | 55940 | 取引態様 | 仲介 |
| 情報更新日 | *** | ||
| 次回更新予定日 | 情報更新日より15日以内 | ||



















COMMENTS FROM STAFFメインステージ荻窪【満室】の
担当者コメント
東京の1人暮らしはアセットナビへ!自社ブランドマンションをはじめ、賃貸物件を数多くご紹介可能です。こちらの物件は、分譲賃貸マンションで設備が充実しております。オートロックシステムでセキュリティもバッチリです。