メインステージ武蔵関駅前【満室】 *** | 1K | ***
本情報は過去に掲載された物件の参考情報です。 最新の物件情報など詳細につきましてはお気軽にお問合せください。
| 賃料 | *** | 管理費・共益費 | *** |
|---|---|---|---|
| 敷金/礼金 | *** / *** | 専有面積 | 25.36m² |
| 間取り | 1K | 階建 | ***/5階建 |
メインステージ武蔵関駅前【満室】の詳細
| 賃料 | *** | 管理費・共益費 | *** |
|---|---|---|---|
| 敷金/保証金 | *** / *** | 礼金/償却・敷引 | *** / *** |
| 更新料 | *** | フリーレント | *** |
| その他費用 | *** | ||
| 所在地 | 東京都練馬区関町北2丁目 | ||
| 交通 |
西武鉄道新宿線「武蔵関」 徒歩2分 総武・中央緩行線「吉祥寺」 徒歩36分 西武鉄道新宿線「上石神井」 徒歩21分 |
||
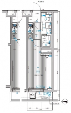
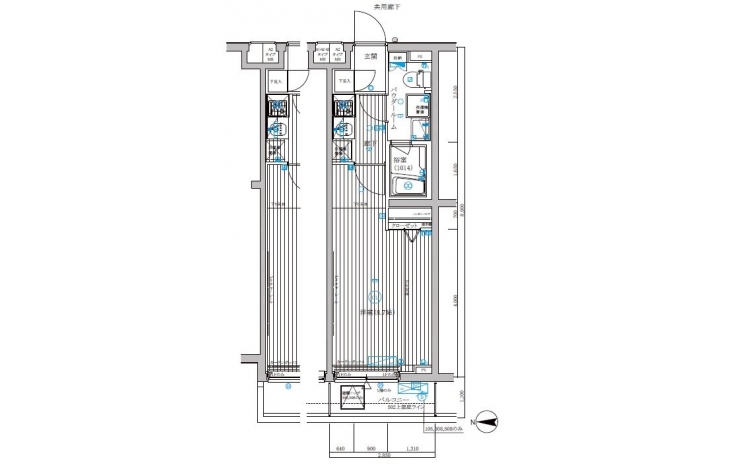
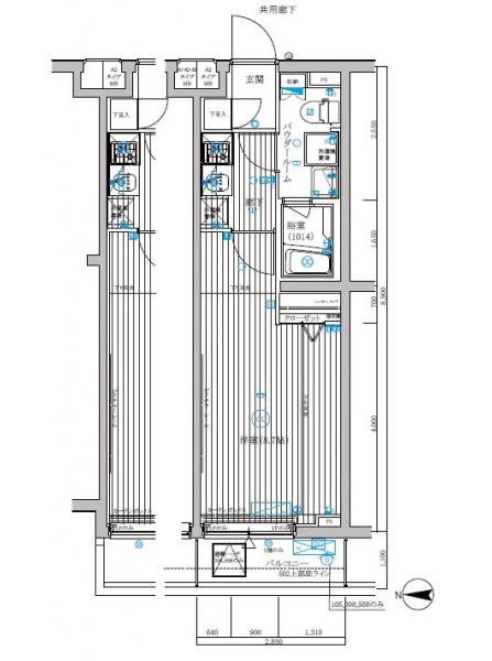
| 間取り | 1K | 間取り内訳 |
洋室 8.7 畳 |
| 専有面積 | 25.36m² | バルコニー面積 | 3.13m² |
| 築年月(築年数) | 2013年12月(築12年) | 方位 | 西 |
| 建物構造 | RC(鉄筋コンクリート) | 所在階/階建 | ***/5階建 |
| 総戸数 | 47戸 | 駐車場 | |
| 保険料 | *** | 契約期間 | *** |
| 引渡 | 即時 | ||
| 現況(予定年月) | 空室 | ||
| 管理 | 管理人/巡回、管理会社/株式会社青山ハウジングサポート(03-5281-4914) | ||
| 設備・条件 | BSアンテナ、CSアンテナ、オートロック、TVドアホン、防犯カメラ、ディンプルキー、ダブルロックキー、宅配ボックス、バイク置き場、駐輪場、エレベータ、2階以上、システムキッチン、バス・トイレ別、温水洗浄便座、浴室乾燥機、室内洗濯機置き場、洗濯機置き場有、フローリング、24時間換気システム、エアコン、バルコニー、分譲賃貸 | ||
| 備考 | 保証人代行:必須/総賃料の50%~ | ||
| 周辺施設 |
ファミリーマート 関町北二丁目店(距離:307m) アキダイ関町本店(距離:398m) |
||
| 物件番号 | 16453 | 取引態様 | 代理 |
| 情報更新日 | *** | ||
| 次回更新予定日 | 情報更新日より15日以内 | ||





















COMMENTS FROM STAFFメインステージ武蔵関駅前【満室】の
担当者コメント
☆西武新宿線「「武蔵関」駅徒歩2分☆ペット可