ルーブル旗の台弐番館【満室】 *** | 1K | ***
本情報は過去に掲載された物件の参考情報です。 最新の物件情報など詳細につきましてはお気軽にお問合せください。
| 賃料 | *** | 管理費・共益費 | *** |
|---|---|---|---|
| 敷金/礼金 | *** / *** | 専有面積 | 21.00m² |
| 間取り | 1K | 階建 | ***/6階建 |
ルーブル旗の台弐番館【満室】の詳細
| 賃料 | *** | 管理費・共益費 | *** |
|---|---|---|---|
| 敷金/保証金 | *** / *** | 礼金/償却・敷引 | *** / *** |
| 更新料 | *** | フリーレント | *** |
| その他費用 | *** | ||
| 所在地 | 東京都大田区北千束2丁目 | ||
| 交通 |
東急大井町線「旗の台」 徒歩7分 東急池上線「長原(東京)」 徒歩5分 東急大井町線「北千束」 徒歩9分 |
||
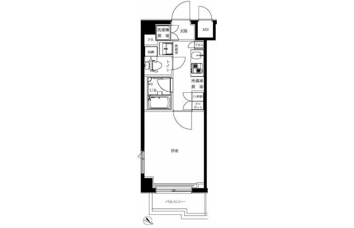
| 間取り | 1K | 間取り内訳 |
K 2 畳 2 階 洋室 6 畳 2 階 |
| 専有面積 | 21.00m² | バルコニー面積 | |
| 築年月(築年数) | 2013年02月(築12年) | 方位 | 北東 |
| 建物構造 | RC(鉄筋コンクリート) | 所在階/階建 | ***/6階建 |
| 総戸数 | 47戸 | 駐車場 | |
| 保険料 | *** | 契約期間 | *** |
| 引渡 | 2025年09月 | ||
| 現況(予定年月) | 空室 | ||
| 管理 | 管理人/巡回、管理会社/(株)TFDコミュニティ | ||
| 設備・条件 | 光ファイバー、オートロック、TVドアホン、防犯カメラ、宅配ボックス、駐輪場、エレベータ、システムキッチン、バス・トイレ別、温水洗浄便座、浴室乾燥機、室内洗濯機置き場、フローリング、24時間換気システム、エアコン、分譲賃貸、敷金なし | ||
| 備考 | 保証人代行:必須/初回保証料30%(家賃+共益費)年間保証料10000円 ※学生初回保証料9000円 | ||
| 周辺施設 | Olympic(オリンピック) 長原店(距離:159m) | ||
| 物件番号 | 63022 | 取引態様 | 仲介 |
| 情報更新日 | *** | ||
| 次回更新予定日 | 情報更新日より15日以内 | ||




















COMMENTS FROM STAFFルーブル旗の台弐番館【満室】の
担当者コメント
東京の1人暮らしはアセットナビへ!自社ブランドマンションをはじめ、賃貸物件を数多くご紹介可能です。こちらの物件は、分譲賃貸マンションで設備が充実しております。オートロックシステムでセキュリティもバッチリです。快適な独立洗面台つき。お手入れラクラク温水洗浄便座。雨の日でも洗濯物が干せる浴室乾燥機。2面採光の角部屋で通風良好。