ルーブル上池台弐番館【満室】 *** | 2DK | ***
本情報は過去に掲載された物件の参考情報です。 最新の物件情報など詳細につきましてはお気軽にお問合せください。
| 賃料 | *** | 管理費・共益費 | *** |
|---|---|---|---|
| 敷金/礼金 | *** / *** | 専有面積 | 41.04m² |
| 間取り | 2DK | 階建 | ***/6階建 |
ルーブル上池台弐番館【満室】の詳細
| 賃料 | *** | 管理費・共益費 | *** |
|---|---|---|---|
| 敷金/保証金 | *** / *** | 礼金/償却・敷引 | *** / *** |
| 更新料 | *** | フリーレント | *** |
| その他費用 | *** | ||
| 所在地 | 東京都大田区上池台5丁目 | ||
| 交通 |
都営浅草線「西馬込」 徒歩11分 東急池上線「洗足池」 徒歩16分 東急池上線「長原(東京)」 徒歩20分 |
||
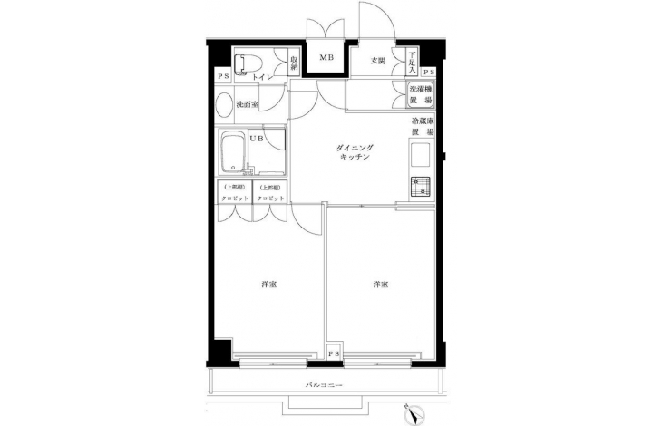
| 間取り | 2DK | 間取り内訳 |
DK 6 畳 洋室 6 畳 洋室 6 畳 |
| 専有面積 | 41.04m² | バルコニー面積 | |
| 築年月(築年数) | 2007年08月(築18年) | 方位 | 南西 |
| 建物構造 | RC(鉄筋コンクリート) | 所在階/階建 | ***/6階建 |
| 総戸数 | 88戸 | 駐車場 | 無 |
| 保険料 | *** | 契約期間 | *** |
| 引渡 | 2022年03月 | ||
| 現況(予定年月) | 居住中 | ||
| 管理 | 管理人/日勤、 | ||
| 設備・条件 | BSアンテナ、CSアンテナ、光ファイバー、オートロック、TVドアホン、防犯カメラ、ディンプルキー、ダブルロックキー、宅配ボックス、駐輪場、エレベータ、デザイナーズ、システムキッチン、バス・トイレ別、温水洗浄便座、浴室乾燥機、追い焚き、室内洗濯機置き場、フローリング、24時間換気システム、エアコン、バルコニー、分譲賃貸、日当たり良好 | ||
| 備考 | 保証人代行:可/新日本信用保証、クレディセゾン、エポスカード 家賃総額の30%~ | ||
| 周辺施設 |
まいばすけっと 上池台店(距離:320m) ライフ 上池台店(距離:662m) ファミリーマート 大田上池台三丁目店(距離:213m) セブンイレブン 大田区上池台3丁目店(距離:454m) クリエイトSD(エス・ディー) 大田区上池台店(距離:221m) |
||
| 物件番号 | 22640 | 取引態様 | 代理 |
| 情報更新日 | *** | ||
| 次回更新予定日 | 情報更新日より15日以内 | ||
















COMMENTS FROM STAFFルーブル上池台弐番館【満室】の
担当者コメント
敷金0円で初期費用が抑えられます/分譲賃貸マンション/オートロックシステムでセキュリティバッチリ/いつでも荷物が受け取れる宅配ボックス/浴室乾燥機つきで雨の日でも洗濯可/快適な独立洗面化粧台つき/2面採光の角部屋/広々2DKタイプ