ガラ・シティ芝公園【満室】 *** | 1K | ***
本情報は過去に掲載された物件の参考情報です。 最新の物件情報など詳細につきましてはお気軽にお問合せください。
| 賃料 | *** | 管理費・共益費 | *** |
|---|---|---|---|
| 敷金/礼金 | *** / *** | 専有面積 | 22.12m² |
| 間取り | 1K | 階建 | ***/13階建 |
ガラ・シティ芝公園【満室】の詳細
| 賃料 | *** | 管理費・共益費 | *** |
|---|---|---|---|
| 敷金/保証金 | *** / *** | 礼金/償却・敷引 | *** / *** |
| 更新料 | *** | フリーレント | *** |
| その他費用 | *** | ||
| 所在地 | 東京都港区芝2丁目 | ||
| 交通 |
山手線「浜松町」 徒歩8分 都営三田線「芝公園」 徒歩7分 都営浅草線「大門(東京)」 徒歩8分 |
||
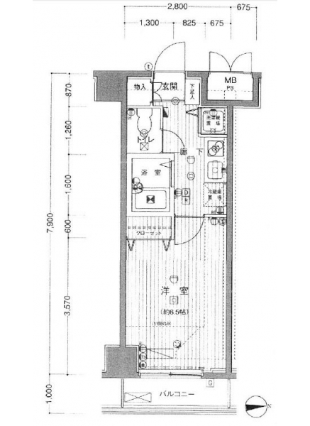
| 間取り | 1K | 間取り内訳 |
K 2 畳 洋室 6.5 畳 |
| 専有面積 | 22.12m² | バルコニー面積 | |
| 築年月(築年数) | 2001年11月(築24年) | 方位 | 東 |
| 建物構造 | SRC(鉄骨鉄筋コンクリート) | 所在階/階建 | ***/13階建 |
| 総戸数 | 駐車場 | 無 | |
| 保険料 | *** | 契約期間 | *** |
| 引渡 | 2021年07月 | ||
| 現況(予定年月) | 居住中 | ||
| 管理 | 管理人/巡回、 | ||
| 設備・条件 | BSアンテナ、CSアンテナ、CATV、オートロック、防犯カメラ、宅配ボックス、エレベータ、2階以上、システムキッチン、バス・トイレ別、温水洗浄便座、室内洗濯機置き場、フローリング、エアコン、バルコニー、分譲賃貸 | ||
| 備考 | 保証人代行:必須/詳細はお問い合わせください。 | ||
| 周辺施設 |
まいばすけっと三田駅東店(距離:344m) ファミリーマート第一京浜芝二丁目店(距離:153m) ローソン 金杉橋店(距離:159m) 桑山清心堂(距離:169m) まいばすけっと 芝2丁目店(距離:192m) ファミリーマート 南山堂第一京浜芝店(距離:121m) |
||
| 物件番号 | 16943 | 取引態様 | 代理 |
| 情報更新日 | *** | ||
| 次回更新予定日 | 情報更新日より15日以内 | ||

















COMMENTS FROM STAFFガラ・シティ芝公園【満室】の
担当者コメント
敷金礼金ゼロで初期費用が抑えられます/分譲賃貸マンション/オートロックシステムでセキュリティバッチリ/いつでも荷物が受け取れる宅配ボックス/浜松町駅徒歩8分の好立地/周辺施設充実