ARKMARK東大井【満室】 *** | 1DK | ***
本情報は過去に掲載された物件の参考情報です。 最新の物件情報など詳細につきましてはお気軽にお問合せください。
| 賃料 | *** | 管理費・共益費 | *** |
|---|---|---|---|
| 敷金/礼金 | *** / *** | 専有面積 | 25.58m² |
| 間取り | 1DK | 階建 | ***/5階建 |
ARKMARK東大井【満室】の詳細
| 賃料 | *** | 管理費・共益費 | *** |
|---|---|---|---|
| 敷金/保証金 | *** / *** | 礼金/償却・敷引 | *** / *** |
| 更新料 | *** | フリーレント | *** |
| その他費用 | *** | ||
| 所在地 | 東京都品川区東大井3丁目 | ||
| 交通 |
京浜急行電鉄本線「立会川」 徒歩6分 京浜東北・根岸線「大井町」 徒歩11分 東急大井町線「大井町」 徒歩14分 |
||
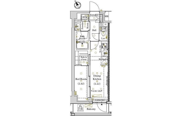
| 間取り | 1DK | 間取り内訳 |
洋室 2.8 畳 DK 5.2 畳 |
| 専有面積 | 25.58m² | バルコニー面積 | |
| 築年月(築年数) | 2025年08月(新築) | 方位 | 南西 |
| 建物構造 | RC(鉄筋コンクリート) | 所在階/階建 | ***/5階建 |
| 総戸数 | 62戸 | 駐車場 | |
| 保険料 | *** | 契約期間 | *** |
| 引渡 | 即時 | ||
| 現況(予定年月) | 空室 | ||
| 管理 | |||
| 設備・条件 | オートロック、TVドアホン、防犯カメラ、宅配ボックス、バイク置き場、駐輪場、エレベータ、ARKMARK(アークマーク)シリーズ、2階以上、バス・トイレ別、温水洗浄便座、浴室乾燥機、室内洗濯機置き場、洗濯機置き場有、エアコン、ウォークインクローゼット、分譲賃貸、礼金なし、敷金なし、ペット不可 | ||
| 備考 | 保証人代行:必須/総賃料40%~ | ||
| 周辺施設 |
ファミリーマート 東大井三丁目店(距離:178m) セブンイレブン 品川東大井2丁目店(距離:325m) スマイル薬局東大井店(距離:391m) まいばすけっと 立会川駅北店(距離:343m) まいばすけっと 立会川駅西店(距離:465m) |
||
| 物件番号 | 63533 | 取引態様 | 仲介 |
| 情報更新日 | *** | ||
| 次回更新予定日 | 情報更新日より15日以内 | ||




















COMMENTS FROM STAFFARKMARK東大井【満室】の
担当者コメント
東京の1人暮らしはアセットナビへ!自社ブランドマンションをはじめ、賃貸物件を数多くご紹介可能です。こちらの物件は、分譲賃貸マンションで設備が充実しております。オートロックシステムでセキュリティもバッチリです。