ノースヒル新宿イースト【満室】 *** | 1R | ***
本情報は過去に掲載された物件の参考情報です。 最新の物件情報など詳細につきましてはお気軽にお問合せください。
| 賃料 | *** | 管理費・共益費 | *** |
|---|---|---|---|
| 敷金/礼金 | *** / *** | 専有面積 | 14.15m² |
| 間取り | 1R | 階建 | ***/2階建(B1階) |
ノースヒル新宿イースト【満室】の詳細
| 賃料 | *** | 管理費・共益費 | *** |
|---|---|---|---|
| 敷金/保証金 | *** / *** | 礼金/償却・敷引 | *** / *** |
| 更新料 | *** | フリーレント | *** |
| その他費用 | *** | ||
| 所在地 | 東京都新宿区北新宿2丁目 | ||
| 交通 |
総武・中央緩行線「大久保(東京)」 徒歩7分 山手線「新宿」 徒歩20分 都営大江戸線「新宿西口」 徒歩18分 |
||
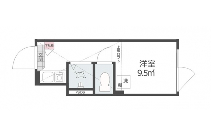
| 間取り | 1R | 間取り内訳 |
洋室 9.5 畳 その他 4.7 畳 |
| 専有面積 | 14.15m² | バルコニー面積 | |
| 築年月(築年数) | 2021年03月(築4年) | 方位 | |
| 建物構造 | RC(鉄筋コンクリート) | 所在階/階建 | ***/2階建(B1階) |
| 総戸数 | 駐車場 | ||
| 保険料 | *** | 契約期間 | *** |
| 引渡 | 2025年11月 | ||
| 現況(予定年月) | 賃貸中 | ||
| 管理 | |||
| 設備・条件 | オートロック、TVドアホン、防犯カメラ、宅配ボックス、温水洗浄便座、室内洗濯機置き場、洗濯機置き場有、フローリング、ロフト付き、エアコン、礼金なし、敷金なし | ||
| 備考 | 保証人代行:必須/総賃料の50% 900円/月 | ||
| 周辺施設 |
Olympic(オリンピック) 北新宿店(距離:290m) まいばすけっと 北新宿2丁目店(距離:414m) マルエツ プチ 中野中央店(距離:488m) ローソン 北新宿一丁目店(距離:105m) ローソン北新宿1丁目店(距離:190m) ローソンストア100 LS北新宿店(距離:264m) |
||
| 物件番号 | 63904 | 取引態様 | 仲介 |
| 情報更新日 | *** | ||
| 次回更新予定日 | 情報更新日より15日以内 | ||


















COMMENTS FROM STAFFノースヒル新宿イースト【満室】の
担当者コメント
東京の1人暮らしはアセットナビへ!自社ブランドマンションをはじめ、賃貸物件を数多くご紹介可能です。こちらの物件は、賃貸マンションで設備が充実しております。オートロックシステムでセキュリティもバッチリです。