メインステージ錦糸町II【満室】 *** | 1K | ***
本情報は過去に掲載された物件の参考情報です。 最新の物件情報など詳細につきましてはお気軽にお問合せください。
| 賃料 | *** | 管理費・共益費 | *** |
|---|---|---|---|
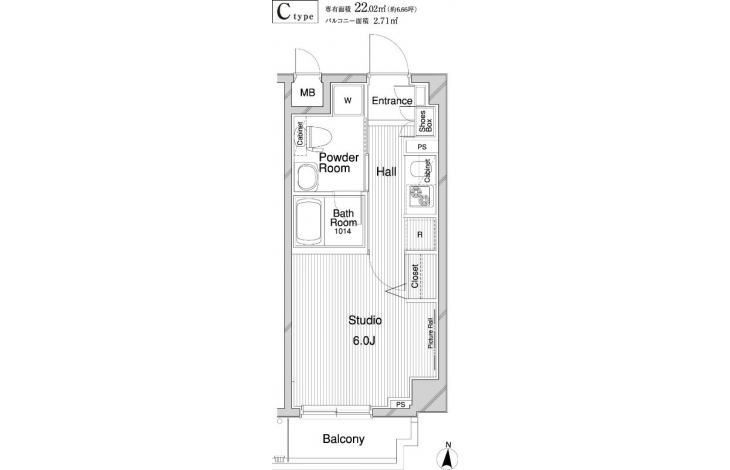
| 敷金/礼金 | *** / *** | 専有面積 | 22.02m² |
| 間取り | 1K | 階建 | ***/8階建 |
メインステージ錦糸町II【満室】の詳細
| 賃料 | *** | 管理費・共益費 | *** |
|---|---|---|---|
| 敷金/保証金 | *** / *** | 礼金/償却・敷引 | *** / *** |
| 更新料 | *** | フリーレント | *** |
| その他費用 | *** | ||
| 所在地 | 東京都江東区亀戸1丁目 | ||
| 交通 |
総武・中央緩行線「錦糸町」 徒歩10分 総武・中央緩行線「亀戸」 徒歩10分 都営新宿線「住吉(東京)」 徒歩13分 |
||
| 間取り | 1K | 間取り内訳 |
洋室 6 畳 |
| 専有面積 | 22.02m² | バルコニー面積 | |
| 築年月(築年数) | 2007年04月(築18年) | 方位 | 南 |
| 建物構造 | RC(鉄筋コンクリート) | 所在階/階建 | ***/8階建 |
| 総戸数 | 67戸 | 駐車場 | |
| 保険料 | *** | 契約期間 | *** |
| 引渡 | 2025年03月 | ||
| 現況(予定年月) | 居住中 | ||
| 管理 | |||
| 設備・条件 | BSアンテナ、CSアンテナ、CATV、オートロック、TVドアホン、ディンプルキー、ダブルロックキー、宅配ボックス、駐輪場、エレベータ、2階以上、角部屋、システムキッチン、バス・トイレ別、温水洗浄便座、浴室乾燥機、室内洗濯機置き場、洗濯機置き場有、フローリング、エアコン、バルコニー、分譲賃貸、日当たり良好、敷金なし、ペット不可、ルームシェア相談 | ||
| 備考 | 保証人代行:必須/賃料総額の50%~ | ||
| 周辺施設 |
まいばすけっと 江東亀戸1丁目店(距離:173m) まいばすけっと 江東亀戸6丁目店(距離:572m) ローソン 墨東病院東店(距離:104m) セブンイレブン 都立墨東病院東店(距離:265m) スギ薬局 江東橋店(距離:446m) |
||
| 物件番号 | 56791 | 取引態様 | 仲介 |
| 情報更新日 | *** | ||
| 次回更新予定日 | 情報更新日より15日以内 | ||




















COMMENTS FROM STAFFメインステージ錦糸町II【満室】の
担当者コメント
東京の1人暮らしはアセットナビへ!自社ブランドマンションをはじめ、賃貸物件を数多くご紹介可能です。こちらの物件は、分譲賃貸マンションで設備が充実しております。オートロックシステムでセキュリティもバッチリです。