メインステージ田端【満室】 *** | 1K | ***
本情報は過去に掲載された物件の参考情報です。 最新の物件情報など詳細につきましてはお気軽にお問合せください。
| 賃料 | *** | 管理費・共益費 | *** |
|---|---|---|---|
| 敷金/礼金 | *** / *** | 専有面積 | 25.67m² |
| 間取り | 1K | 階建 | ***/12階建(B1階) |
メインステージ田端【満室】の詳細
| 賃料 | *** | 管理費・共益費 | *** |
|---|---|---|---|
| 敷金/保証金 | *** / *** | 礼金/償却・敷引 | *** / *** |
| 更新料 | *** | フリーレント | *** |
| その他費用 | *** | ||
| 所在地 | 東京都北区田端新町3丁目 | ||
| 交通 |
山手線「田端」 徒歩10分 高崎線「尾久」 徒歩9分 都営荒川線「荒川遊園地前」 徒歩13分 |
||
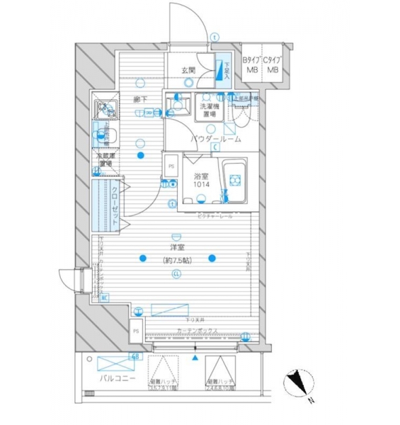
| 間取り | 1K | 間取り内訳 |
K 2.5 畳 洋室 7.5 畳 |
| 専有面積 | 25.67m² | バルコニー面積 | |
| 築年月(築年数) | 2009年04月(築16年) | 方位 | 北東 |
| 建物構造 | RC(鉄筋コンクリート) | 所在階/階建 | ***/12階建(B1階) |
| 総戸数 | 33戸 | 駐車場 | |
| 保険料 | *** | 契約期間 | *** |
| 引渡 | 2024年09月 | ||
| 現況(予定年月) | 居住中 | ||
| 管理 | 管理人/巡回、 | ||
| 設備・条件 | CATV、光ファイバー、オートロック、TVドアホン、防犯カメラ、ディンプルキー、ダブルロックキー、宅配ボックス、駐輪場、エレベータ、2階以上、角部屋、システムキッチン、バス・トイレ別、温水洗浄便座、浴室乾燥機、室内洗濯機置き場、フローリング、エアコン、バルコニー、分譲賃貸、敷金なし、ペット相談 | ||
| 備考 | 保証人代行:必須/賃料+管理費の50%~ | ||
| 周辺施設 |
Olympic(オリンピック) 西尾久店(距離:278m) ファミリーマート 田端新町三丁目店(距離:223m) Welpark(ウェルパーク) 荒川西尾久店(距離:310m) セブンイレブン 北区田端新町3丁目店(距離:294m) 業務スーパー 田端店(距離:338m) さいとう薬局(距離:396m) |
||
| 物件番号 | 36443 | 取引態様 | 仲介 |
| 情報更新日 | *** | ||
| 次回更新予定日 | 情報更新日より15日以内 | ||



















COMMENTS FROM STAFFメインステージ田端【満室】の
担当者コメント
東京の1人暮らしはアセットナビへ!自社ブランドマンションをはじめ、賃貸物件を数多くご紹介可能です。サマーキャンペーン実施中!ご来店のお客様・先着25名にハーゲンダッツギフト券をプレゼント。詳しくはスタッフまでお問い合わせください。