メインステージ板橋志村III【満室】 *** | 1K | ***
本情報は過去に掲載された物件の参考情報です。 最新の物件情報など詳細につきましてはお気軽にお問合せください。
| 賃料 | *** | 管理費・共益費 | *** |
|---|---|---|---|
| 敷金/礼金 | *** / *** | 専有面積 | 25.98m² |
| 間取り | 1K | 階建 | ***/7階建 |
メインステージ板橋志村III【満室】の詳細
| 賃料 | *** | 管理費・共益費 | *** |
|---|---|---|---|
| 敷金/保証金 | *** / *** | 礼金/償却・敷引 | *** / *** |
| 更新料 | *** | フリーレント | *** |
| その他費用 | *** | ||
| 所在地 | 東京都板橋区志村3丁目 | ||
| 交通 |
都営三田線「志村三丁目」 徒歩9分 都営三田線「志村坂上」 徒歩7分 埼京線「浮間舟渡」 徒歩27分 |
||
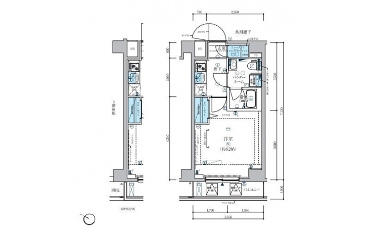
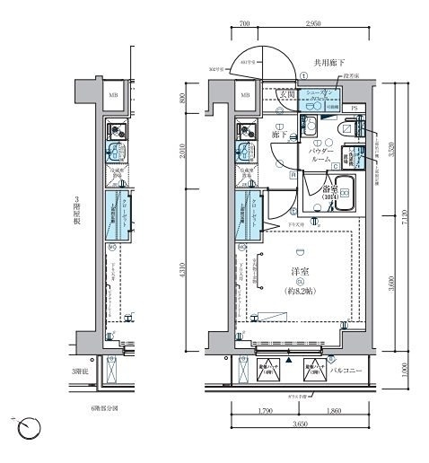
| 間取り | 1K | 間取り内訳 |
洋室 8.2 畳 |
| 専有面積 | 25.98m² | バルコニー面積 | |
| 築年月(築年数) | 2025年07月(新築) | 方位 | 南西 |
| 建物構造 | RC(鉄筋コンクリート) | 所在階/階建 | ***/7階建 |
| 総戸数 | 46戸 | 駐車場 | |
| 保険料 | *** | 契約期間 | *** |
| 引渡 | 即時 | ||
| 現況(予定年月) | 空室 | ||
| 管理 | |||
| 設備・条件 | オートロック、防犯カメラ、宅配ボックス、エレベータ、2階以上、バス・トイレ別、温水洗浄便座、浴室乾燥機、室内洗濯機置き場、洗濯機置き場有、24時間換気システム、エアコン、分譲賃貸、敷金なし、ペット相談 | ||
| 備考 | 保証人代行:必須/賃料総額の50%~ | ||
| 周辺施設 |
セブンイレブン 板橋志村3丁目店(距離:128m) サンドラッグ 小豆沢店(距離:480m) ヨークマート 小豆沢店(距離:500m) 三徳 志村店(距離:322m) ドラッグストア いわい志村坂上店(距離:500m) |
||
| 物件番号 | 62726 | 取引態様 | 仲介 |
| 情報更新日 | *** | ||
| 次回更新予定日 | 情報更新日より15日以内 | ||




















COMMENTS FROM STAFFメインステージ板橋志村III【満室】の
担当者コメント
東京の1人暮らしはアセットナビへ!自社ブランドマンションをはじめ、賃貸物件を数多くご紹介可能です。こちらの物件は、分譲賃貸マンションで設備が充実しております。オートロックシステムでセキュリティもバッチリです。