ルーブル中野富士見町【満室】 *** | 1K | ***
本情報は過去に掲載された物件の参考情報です。 最新の物件情報など詳細につきましてはお気軽にお問合せください。
| 賃料 | *** | 管理費・共益費 | *** |
|---|---|---|---|
| 敷金/礼金 | *** / *** | 専有面積 | 26.71m² |
| 間取り | 1K | 階建 | ***/7階建 |
ルーブル中野富士見町【満室】の詳細
| 賃料 | *** | 管理費・共益費 | *** |
|---|---|---|---|
| 敷金/保証金 | *** / *** | 礼金/償却・敷引 | *** / *** |
| 更新料 | *** | フリーレント | *** |
| その他費用 | *** | ||
| 所在地 | 東京都杉並区和田1丁目 | ||
| 交通 |
東京地下鉄方南支線「中野富士見町」 徒歩2分 東京地下鉄丸ノ内線「新中野」 徒歩11分 東京地下鉄方南支線「中野新橋」 徒歩10分 |
||
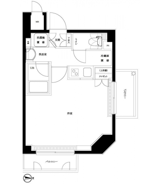
| 間取り | 1K | 間取り内訳 |
洋室 7 畳 3 階 K 1.5 畳 3 階 |
| 専有面積 | 26.71m² | バルコニー面積 | |
| 築年月(築年数) | 2002年12月(築23年) | 方位 | 東 |
| 建物構造 | RC(鉄筋コンクリート) | 所在階/階建 | ***/7階建 |
| 総戸数 | 37戸 | 駐車場 | 無 |
| 保険料 | *** | 契約期間 | *** |
| 引渡 | 2022年09月 | ||
| 現況(予定年月) | 空室 | ||
| 管理 | 管理人/巡回、管理会社/(株)TFDコミュニティ | ||
| 設備・条件 | CATV、オートロック、TVドアホン、防犯カメラ、宅配ボックス、駐輪場、エレベータ、2階以上、角部屋、システムキッチン、バス・トイレ別、温水洗浄便座、室内洗濯機置き場、フローリング、エアコン、バルコニー、分譲賃貸 | ||
| 備考 | 保証人代行:必須/初回保証料30%(家賃+管理費)年間保証料10,000円 ※学生初回保証料9,000円 | ||
| 周辺施設 |
スギドラッグ 杉並和田店(距離:4m) オオゼキ 杉並和田店(距離:35m) マルエツプチ 杉並和田一丁目店(距離:102m) セブンイレブン 杉並和田1丁目店(距離:82m) ファミリーマート 中野富士見町駅前店(距離:106m) |
||
| 物件番号 | 29831 | 取引態様 | 仲介 |
| 情報更新日 | *** | ||
| 次回更新予定日 | 情報更新日より15日以内 | ||


















COMMENTS FROM STAFFルーブル中野富士見町【満室】の
担当者コメント
東京の1人暮らしはアセットナビへ!自社ブランドマンションをはじめ、賃貸物件を数多くご紹介可能です。こちらの物件は、分譲賃貸マンションで設備が充実しております。オートロックシステムでセキュリティもバッチリです。快適な独立洗面台つき。2面採光の角部屋で通風良好。2面バルコニー仕様。