メインステージ南砂町II【満室】 *** | 1R | ***
本情報は過去に掲載された物件の参考情報です。 最新の物件情報など詳細につきましてはお気軽にお問合せください。
| 賃料 | *** | 管理費・共益費 | *** |
|---|---|---|---|
| 敷金/礼金 | *** / *** | 専有面積 | 26.40m² |
| 間取り | 1R | 階建 | ***/14階建 |
メインステージ南砂町II【満室】の詳細
| 賃料 | *** | 管理費・共益費 | *** |
|---|---|---|---|
| 敷金/保証金 | *** / *** | 礼金/償却・敷引 | *** / *** |
| 更新料 | *** | フリーレント | *** |
| その他費用 | *** | ||
| 所在地 | 東京都江東区南砂2丁目 | ||
| 交通 |
東京地下鉄東西線「南砂町」 徒歩6分 東京地下鉄東西線「東陽町」 徒歩11分 京葉線「潮見」 徒歩29分 |
||
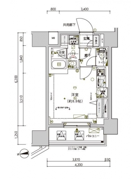
| 間取り | 1R | 間取り内訳 |
洋室 8.8 畳 14 階 |
| 専有面積 | 26.40m² | バルコニー面積 | |
| 築年月(築年数) | 2025年06月(新築) | 方位 | 西 |
| 建物構造 | RC(鉄筋コンクリート) | 所在階/階建 | ***/14階建 |
| 総戸数 | 駐車場 | 空無 | |
| 保険料 | *** | 契約期間 | *** |
| 引渡 | 即時 | ||
| 現況(予定年月) | 空室 | ||
| 管理 | 管理人/巡回、 | ||
| 設備・条件 | オートロック、TVドアホン、防犯カメラ、宅配ボックス、エレベータ、2階以上、システムキッチン、バス・トイレ別、温水洗浄便座、浴室乾燥機、室内洗濯機置き場、洗濯機置き場有、フローリング、24時間換気システム、エアコン、分譲賃貸、敷金なし、ペット相談 | ||
| 備考 | 保証人代行:必須/賃料と管理費の50%~ | ||
| 周辺施設 |
オーケー 南砂店(距離:679m) ローソン 南砂葛西橋通店(距離:481m) |
||
| 物件番号 | 61523 | 取引態様 | 仲介 |
| 情報更新日 | *** | ||
| 次回更新予定日 | 情報更新日より15日以内 | ||




















COMMENTS FROM STAFFメインステージ南砂町II【満室】の
担当者コメント
東京の1人暮らしはアセットナビへ!自社ブランドマンションをはじめ、賃貸物件を数多くご紹介可能です。こちらの物件は、分譲賃貸マンションで設備が充実しております。オートロックシステムでセキュリティもバッチリです。