フェニシア三軒茶屋【満室】 *** | 1K | ***
本情報は過去に掲載された物件の参考情報です。 最新の物件情報など詳細につきましてはお気軽にお問合せください。
| 賃料 | *** | 管理費・共益費 | *** |
|---|---|---|---|
| 敷金/礼金 | *** / *** | 専有面積 | 26.95m² |
| 間取り | 1K | 階建 | ***/9階建 |
フェニシア三軒茶屋【満室】の詳細
| 賃料 | *** | 管理費・共益費 | *** |
|---|---|---|---|
| 敷金/保証金 | *** / *** | 礼金/償却・敷引 | *** / *** |
| 更新料 | *** | フリーレント | *** |
| その他費用 | *** | ||
| 所在地 | 東京都世田谷区太子堂2丁目 | ||
| 交通 |
東急田園都市線「三軒茶屋」 徒歩4分 東急世田谷線「西太子堂」 徒歩12分 東急田園都市線「池尻大橋」 徒歩15分 |
||
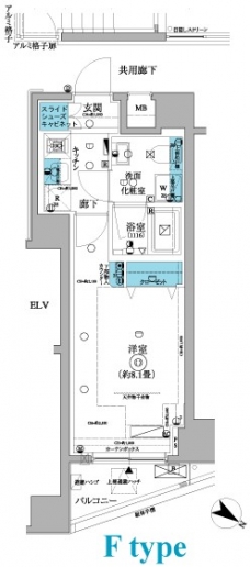
| 間取り | 1K | 間取り内訳 |
洋室 8.1 畳 2 階 |
| 専有面積 | 26.95m² | バルコニー面積 | 3.44m² |
| 築年月(築年数) | 2010年12月(築15年) | 方位 | 北東 |
| 建物構造 | RC(鉄筋コンクリート) | 所在階/階建 | ***/9階建 |
| 総戸数 | 43戸 | 駐車場 | |
| 保険料 | *** | 契約期間 | *** |
| 引渡 | 2023年04月 | ||
| 現況(予定年月) | 賃貸中 | ||
| 管理 | 管理人/巡回、 | ||
| 設備・条件 | CATV、オートロック、防犯カメラ、ディンプルキー、ダブルロックキー、宅配ボックス、バイク置き場、駐輪場、エレベータ、2階以上、システムキッチン、バス・トイレ別、浴室乾燥機、追い焚き、室内洗濯機置き場、フローリング、24時間換気システム、エアコン、バルコニー、分譲賃貸 | ||
| 備考 | 保証人代行:必須/トーシンライフサポート、オリコフォレントインシュア/保証料:初回=賃料等×50%、月額=賃料等×1% | ||
| 周辺施設 |
セブンイレブン 三軒茶屋駅東店(距離:92m) ファミリーマート 三軒茶屋東店(距離:191m) まいばすけっと 三軒茶屋駅北口店(距離:241m) トモズ 三軒茶屋店(距離:417m) まいばすけっと 太子堂2丁目店(距離:472m) |
||
| 物件番号 | 36174 | 取引態様 | 仲介 |
| 情報更新日 | *** | ||
| 次回更新予定日 | 情報更新日より15日以内 | ||





















COMMENTS FROM STAFFフェニシア三軒茶屋【満室】の
担当者コメント
東京の1人暮らしはアセットナビへ!自社ブランドマンションをはじめ、賃貸物件を数多くご紹介可能です。こちらの物件は、分譲賃貸マンションで設備が充実しております。オートロックシステムでセキュリティもバッチリです。