メインステージ上野【満室】 *** | 1DK | ***
本情報は過去に掲載された物件の参考情報です。 最新の物件情報など詳細につきましてはお気軽にお問合せください。
| 賃料 | *** | 管理費・共益費 | *** |
|---|---|---|---|
| 敷金/礼金 | *** / *** | 専有面積 | 32.76m² |
| 間取り | 1DK | 階建 | ***/13階建 |
メインステージ上野【満室】の詳細
| 賃料 | *** | 管理費・共益費 | *** |
|---|---|---|---|
| 敷金/保証金 | *** / *** | 礼金/償却・敷引 | *** / *** |
| 更新料 | *** | フリーレント | *** |
| その他費用 | *** | ||
| 所在地 | 東京都台東区東上野4丁目 | ||
| 交通 |
山手線「上野」 徒歩3分 東京地下鉄銀座線「稲荷町(東京)」 徒歩8分 東京地下鉄銀座線「上野広小路」 徒歩4分 |
||
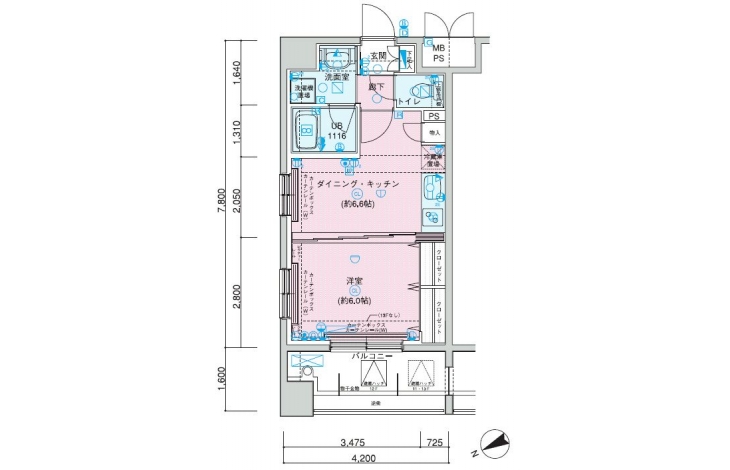
| 間取り | 1DK | 間取り内訳 |
DK 6.6 畳 洋室 6 畳 |
| 専有面積 | 32.76m² | バルコニー面積 | |
| 築年月(築年数) | 2005年11月(築20年) | 方位 | 北西 |
| 建物構造 | SRC(鉄骨鉄筋コンクリート) | 所在階/階建 | ***/13階建 |
| 総戸数 | 58戸 | 駐車場 | 無 |
| 保険料 | *** | 契約期間 | *** |
| 引渡 | 即時 | ||
| 現況(予定年月) | 空室 | ||
| 管理 | 管理人/巡回、 | ||
| 設備・条件 | BSアンテナ、CSアンテナ、CATV、光ファイバー、オートロック、防犯カメラ、ディンプルキー、宅配ボックス、駐輪場、エレベータ、デザイナーズ、角部屋、システムキッチン、バス・トイレ別、温水洗浄便座、浴室乾燥機、室内洗濯機置き場、フローリング、24時間換気システム、エアコン、バルコニー、分譲賃貸、ペット不可 | ||
| 備考 | 保証人代行:必須/総賃料の50%~ | ||
| 周辺施設 |
肉のハナマサ湯島店(距離:861m) ローソン上野五丁目昭和通店(距離:824m) 肉のハナマサ秋葉原店(距離:836m) セブンイレブン台東東上野4丁目店(距離:785m) マツモトキヨシ 上野アメ横Part2店(距離:54m) |
||
| 物件番号 | 52044 | 取引態様 | 仲介 |
| 情報更新日 | *** | ||
| 次回更新予定日 | 情報更新日より15日以内 | ||

















COMMENTS FROM STAFFメインステージ上野【満室】の
担当者コメント
東京の1人暮らしはアセットナビへ!自社ブランドマンションをはじめ、賃貸物件を数多くご紹介可能です。サマーキャンペーン実施中!ご来店のお客様・先着25名にハーゲンダッツギフト券をプレゼント。詳しくはスタッフまでお問い合わせください。