ルーブル早稲田【満室】 *** | 1K | ***
本情報は過去に掲載された物件の参考情報です。 最新の物件情報など詳細につきましてはお気軽にお問合せください。
| 賃料 | *** | 管理費・共益費 | *** |
|---|---|---|---|
| 敷金/礼金 | *** / *** | 専有面積 | 20.13m² |
| 間取り | 1K | 階建 | ***/8階建 |
ルーブル早稲田【満室】の詳細
| 賃料 | *** | 管理費・共益費 | *** |
|---|---|---|---|
| 敷金/保証金 | *** / *** | 礼金/償却・敷引 | *** / *** |
| 更新料 | *** | フリーレント | *** |
| その他費用 | *** | ||
| 所在地 | 東京都新宿区早稲田鶴巻町 | ||
| 交通 |
東京地下鉄東西線「早稲田」 徒歩2分 都営大江戸線「牛込柳町」 徒歩16分 都営大江戸線「若松河田」 徒歩17分 |
||
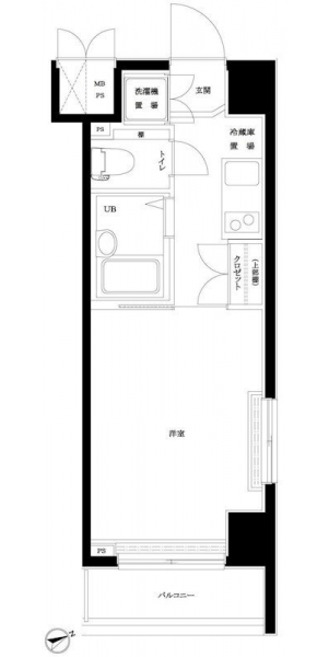
| 間取り | 1K | 間取り内訳 |
K 2 畳 洋室 6 畳 |
| 専有面積 | 20.13m² | バルコニー面積 | |
| 築年月(築年数) | 2003年02月(築23年) | 方位 | 東 |
| 建物構造 | RC(鉄筋コンクリート) | 所在階/階建 | ***/8階建 |
| 総戸数 | 91戸 | 駐車場 | 無 |
| 保険料 | *** | 契約期間 | *** |
| 引渡 | 即時 | ||
| 現況(予定年月) | 空室 | ||
| 管理 | 管理人/巡回、 | ||
| 設備・条件 | BSアンテナ、CSアンテナ、CATV、オートロック、TVドアホン、防犯カメラ、宅配ボックス、駐輪場、エレベータ、デザイナーズ、2階以上、角部屋、システムキッチン、バス・トイレ別、温水洗浄便座、浴室乾燥機、室内洗濯機置き場、フローリング、24時間換気システム、エアコン、バルコニー、分譲賃貸 | ||
| 備考 | 保証人代行:必須/管理会社指定:詳細はお問い合わせください。 | ||
| 周辺施設 |
イトーヨーカドー食品館早稲田店(距離:191m) まいばすけっと山吹町店(距離:836m) まいばすけっと新宿原町3丁目店(距離:1,043m) セブンイレブン新宿喜久井町店(距離:502m) ミニストップ早稲田南町店(距離:321m) ローソン早稲田町店(距離:259m) |
||
| 物件番号 | 34864 | 取引態様 | 仲介 |
| 情報更新日 | *** | ||
| 次回更新予定日 | 情報更新日より15日以内 | ||




















COMMENTS FROM STAFFルーブル早稲田【満室】の
担当者コメント
東京の1人暮らしはアセットナビへ!自社ブランドマンションをはじめ、賃貸物件を数多くご紹介可能です。こちらの物件は、分譲賃貸マンションで設備が充実しております。オートロックシステムでセキュリティもバッチリです。