メインステージ田端弐番館【満室】 *** | 1K | ***
本情報は過去に掲載された物件の参考情報です。 最新の物件情報など詳細につきましてはお気軽にお問合せください。
| 賃料 | *** | 管理費・共益費 | *** |
|---|---|---|---|
| 敷金/礼金 | *** / *** | 専有面積 | 25.62m² |
| 間取り | 1K | 階建 | ***/13階建 |
メインステージ田端弐番館【満室】の詳細
| 賃料 | *** | 管理費・共益費 | *** |
|---|---|---|---|
| 敷金/保証金 | *** / *** | 礼金/償却・敷引 | *** / *** |
| 更新料 | *** | フリーレント | *** |
| その他費用 | *** | ||
| 所在地 | 東京都北区田端2丁目 | ||
| 交通 |
山手線「田端」 徒歩8分 京浜東北・根岸線「西日暮里」 徒歩14分 東京地下鉄千代田線「千駄木」 徒歩14分 |
||
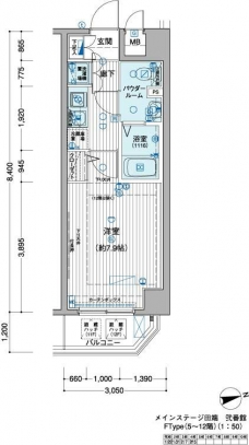
| 間取り | 1K | 間取り内訳 |
K 2 畳 洋室 7.9 畳 |
| 専有面積 | 25.62m² | バルコニー面積 | |
| 築年月(築年数) | 2007年04月(築18年) | 方位 | 南東 |
| 建物構造 | RC(鉄筋コンクリート) | 所在階/階建 | ***/13階建 |
| 総戸数 | 駐車場 | 無 | |
| 保険料 | *** | 契約期間 | *** |
| 引渡 | 2023年02月 | ||
| 現況(予定年月) | 居住中 | ||
| 管理 | 管理人/日勤、 | ||
| 設備・条件 | BSアンテナ、CSアンテナ、CATV、光ファイバー、オートロック、TVドアホン、防犯カメラ、宅配ボックス、駐輪場、エレベータ、システムキッチン、バス・トイレ別、温水洗浄便座、浴室乾燥機、室内洗濯機置き場、フローリング、エアコン、バルコニー、分譲賃貸 | ||
| 備考 | 保証人代行:必須/賃料総額の50%~ | ||
| 周辺施設 |
トップパルケ田端銀座店(距離:678m) セブンイレブン文京本駒込4丁目店(距離:193m) ローソンストア100本駒込店(距離:371m) コープ田端店(距離:92m) 生活彩家田端4丁目店(距離:720m) |
||
| 物件番号 | 33641 | 取引態様 | 仲介 |
| 情報更新日 | *** | ||
| 次回更新予定日 | 情報更新日より15日以内 | ||




















COMMENTS FROM STAFFメインステージ田端弐番館【満室】の
担当者コメント
東京の1人暮らしはアセットナビへ!自社ブランドマンションをはじめ、賃貸物件を数多くご紹介可能です。こちらの物件は、分譲賃貸マンションで設備が充実しております。オートロックシステムでセキュリティもバッチリです。