ルーブル下丸子弐番館【満室】 *** | 2DK | ***
本情報は過去に掲載された物件の参考情報です。 最新の物件情報など詳細につきましてはお気軽にお問合せください。
| 賃料 | *** | 管理費・共益費 | *** |
|---|---|---|---|
| 敷金/礼金 | *** / *** | 専有面積 | 40.60m² |
| 間取り | 2DK | 階建 | ***/6階建 |
ルーブル下丸子弐番館【満室】の詳細
| 賃料 | *** | 管理費・共益費 | *** |
|---|---|---|---|
| 敷金/保証金 | *** / *** | 礼金/償却・敷引 | *** / *** |
| 更新料 | *** | フリーレント | *** |
| その他費用 | *** | ||
| 所在地 | 東京都大田区下丸子2丁目 | ||
| 交通 |
東急多摩川線「武蔵新田」 徒歩8分 東急池上線「千鳥町」 徒歩17分 南武線「平間」 徒歩27分 |
||
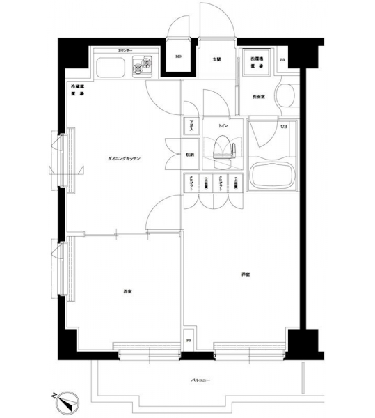
| 間取り | 2DK | 間取り内訳 |
DK 6.5 畳 洋室 6 畳 洋室 5 畳 |
| 専有面積 | 40.60m² | バルコニー面積 | |
| 築年月(築年数) | 2012年03月(築13年) | 方位 | 南西 |
| 建物構造 | RC(鉄筋コンクリート) | 所在階/階建 | ***/6階建 |
| 総戸数 | 63戸 | 駐車場 | |
| 保険料 | *** | 契約期間 | *** |
| 引渡 | 2021年10月 | ||
| 現況(予定年月) | 居住中 | ||
| 管理 | |||
| 設備・条件 | BSアンテナ、CSアンテナ、光ファイバー、オートロック、TVドアホン、防犯カメラ、ディンプルキー、ダブルロックキー、宅配ボックス、駐輪場、エレベータ、デザイナーズ、最上階、角部屋、システムキッチン、バス・トイレ別、温水洗浄便座、浴室乾燥機、追い焚き、室内洗濯機置き場、フローリング、24時間換気システム、エアコン、バルコニー、分譲賃貸、日当たり良好 | ||
| 備考 | 保証人代行:必須/エポス、クレディセゾン、GTN、家賃総額の30%~ | ||
| 周辺施設 |
セブンイレブン 下丸子多摩堤通り店(距離:161m) どらっぐぱぱす 下丸子店(距離:190m) セブンイレブン 大田区矢口店(距離:267m) まいばすけっと 下丸子2丁目店(距離:248m) OK(オーケー) 矢口店(距離:523m) |
||
| 物件番号 | 18973 | 取引態様 | 代理 |
| 情報更新日 | *** | ||
| 次回更新予定日 | 情報更新日より15日以内 | ||
















COMMENTS FROM STAFFルーブル下丸子弐番館【満室】の
担当者コメント
東京の1人暮らしはアセットナビへ!自社ブランドマンションをはじめ、賃貸物件を数多くご紹介可能です。こちらの物件は、分譲賃貸マンションで設備が充実しております。オートロックシステムでセキュリティもバッチリです。