クレヴィスタ梅島【満室】 *** | 1K | ***
本情報は過去に掲載された物件の参考情報です。 最新の物件情報など詳細につきましてはお気軽にお問合せください。
| 賃料 | *** | 管理費・共益費 | *** |
|---|---|---|---|
| 敷金/礼金 | *** / *** | 専有面積 | 26.83m² |
| 間取り | 1K | 階建 | ***/7階建 |
クレヴィスタ梅島【満室】の詳細
| 賃料 | *** | 管理費・共益費 | *** |
|---|---|---|---|
| 敷金/保証金 | *** / *** | 礼金/償却・敷引 | *** / *** |
| 更新料 | *** | フリーレント | *** |
| その他費用 | *** | ||
| 所在地 | 東京都足立区梅島1丁目 | ||
| 交通 |
東武伊勢崎・大師線「梅島」 徒歩4分 東武伊勢崎・大師線「西新井」 徒歩15分 つくばエクスプレス「青井」 徒歩27分 |
||
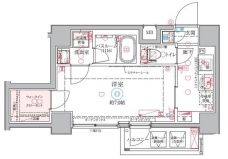
| 間取り | 1K | 間取り内訳 |
洋室 7 畳 |
| 専有面積 | 26.83m² | バルコニー面積 | |
| 築年月(築年数) | 2023年10月(築2年) | 方位 | 西 |
| 建物構造 | RC(鉄筋コンクリート) | 所在階/階建 | ***/7階建 |
| 総戸数 | 37戸 | 駐車場 | |
| 保険料 | *** | 契約期間 | *** |
| 引渡 | 即時 | ||
| 現況(予定年月) | 空室 | ||
| 管理 | 管理人/巡回、 | ||
| 設備・条件 | BSアンテナ、CSアンテナ、オートロック、TVドアホン、防犯カメラ、ダブルロックキー、宅配ボックス、エレベータ、デザイナーズ、2階以上、システムキッチン、バス・トイレ別、温水洗浄便座、浴室乾燥機、室内洗濯機置き場、洗濯機置き場有、フローリング、24時間換気システム、エアコン、ウォークインクローゼット、バルコニー、分譲賃貸、敷金なし、ペット相談 | ||
| 備考 | 保証人代行:必須/賃料総額の40%~ | ||
| 周辺施設 |
東武ストア 梅島店(距離:111m) ファミリーマート 梅島駅前店(距離:182m) アコレ 梅島駅前店(距離:162m) |
||
| 物件番号 | 62146 | 取引態様 | 仲介 |
| 情報更新日 | *** | ||
| 次回更新予定日 | 情報更新日より15日以内 | ||



















COMMENTS FROM STAFFクレヴィスタ梅島【満室】の
担当者コメント
東京の1人暮らしはアセットナビへ!自社ブランドマンションをはじめ、賃貸物件を数多くご紹介可能です。こちらの物件は、分譲賃貸マンションで設備が充実しております。オートロックシステムでセキュリティもバッチリです。※ペット飼育相談可。小型犬敷金+0.5ヶ月/猫敷金+1ヶ月。いずれも償却。※法人:敷金+2ヶ月/礼金+2ヶ月※水・風可:敷金+1ヶ月※2人入居:敷金+1ヶ月